595.000€
141m2
247m2
1800 Mts.
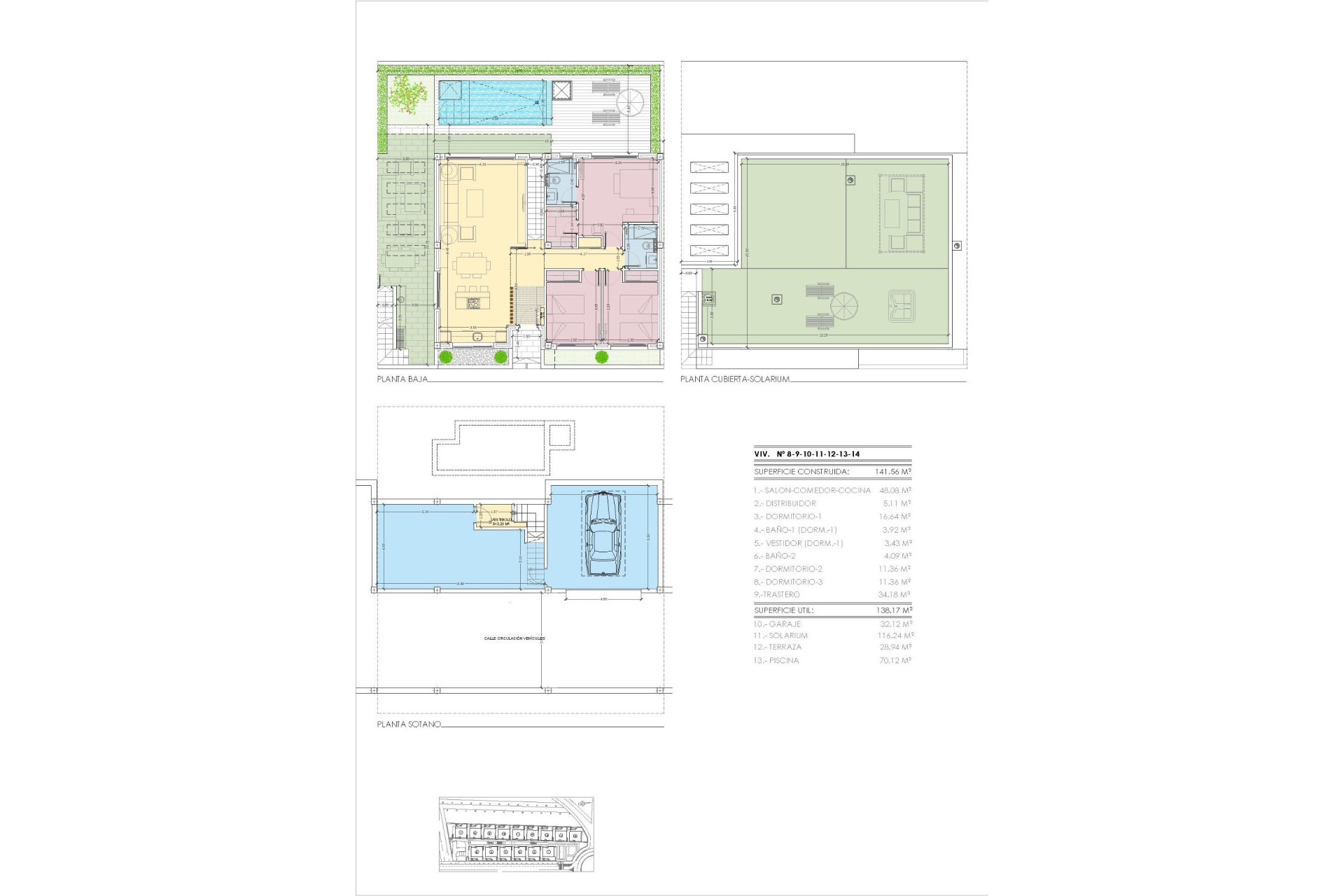
Nueva Promoción de villas en Torrevieja, a 2 km del Mar Villas de 3 dormitorios y 2 baños en una sola planta para mayor comodidad, con orientación oeste, vistas a la laguna y rodeadas de servicios en la zona mas alta de Torrevieja. Disponen de sótano con garaje y trastero. Piscina privada en la parcela y solárium privado desde donde disfrutar de las estupendas puestas de sol sobre la laguna salada de La Mata y Torrevieja. Zonas ajardinadas comunes con circuito de calistenia y petanca. Imagina despertar cada mañana con la suave brisa del Mediterráneo acariciando tu piel. Subes al solarium con tu café recién hecho y contemplas el espectáculo de la Laguna Rosa, que cambia de tonalidad con los primeros rayos del sol. La paz que se respira en el ambiente es absoluta. Bajas las escaleras y te sumerges en tu piscina privada, el agua cristalina refleja el cielo despejado de la Costa Blanca. Aquí, en tu villa de Aguas Nuevas, Torrevieja, cada día es una experiencia de lujo y bienestar. El diseño de esta exclusiva promoción de villas independientes ha sido pensado para quienes buscan más que una casa: un estilo de vida sofisticado y sereno. 3 amplios dormitorios te envuelven en confort, mientras que los dos baños ofrecen un refugio de relajación. El solárium privado se convierte en el lugar perfecto para noches estrelladas con una copa de vino en la mano. Tu hogar está estratégicamente ubicado en un entorno privilegiado donde la exclusividad se une a la cercanía con el mar, los campos de golf y los mejores servicios de la zona. Este no es solo un lugar donde vivir. Es el hogar donde tus sueños toman forma. Bienvenido al estilo de vida que mereces. Acabados de alta calidad y eficiencia energética: Carpintería exterior en Aluminio con rotura del puente térmico y con cristal Climalit. Pre-instalación de aire acondicionado por conductos y Persianas eléctricas. Barandillas en las terrazas en cristal. Aerotermia para agua caliente sanitaria con depósito para 130 litros. Plato de ducha de resina con mampara de cristal y grifería empotrada con ducha negra. Parking subterráneo privado con trastero Esta urbanización está situada cerca de todos los servicios esenciales, por lo que es una ubicación conveniente tanto para los residentes permanentes como para los que buscan una casa de vacaciones. El aeropuerto de Alicante-Elche se encuentra a 45 minutos en coche (43 km), mientras que el centro comercial Habaneras está a sólo 3 km de distancia, proporcionando una amplia experiencia de compras. Experimente el estilo de vida mediterráneo de Torrevieja Torrevieja, situada en el sur de Alicante, ofrece una experiencia mediterránea por excelencia. Con más de 300 días de sol al año y una temperatura media anual de 20ºC, los residentes pueden disfrutar de un tiempo maravilloso durante todo el año. La ciudad es famosa por su rica gastronomía, con ingredientes frescos del mar y de las granjas locales. Además, Torrevieja cuenta con pintorescas playas, paseos marítimos, museos y numerosas actividades adecuadas para familias con niños, lo que garantiza un estilo de vida lleno de ocio y relajación. Venga a explorar Torrevieja Tanto si busca una vibrante comunidad costera como un tranquilo retiro, esta promoción le ofrece una oportunidad única para disfrutar de lo mejor del encanto costero de Torrevieja. Experimente todo lo que esta hermosa ciudad tiene que ofrecer, desde su cálido clima hasta su rico patrimonio cultural y culinario.
3
2
141m2
100m2
247m2
Sí
1800 Mts.