303.000€
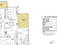
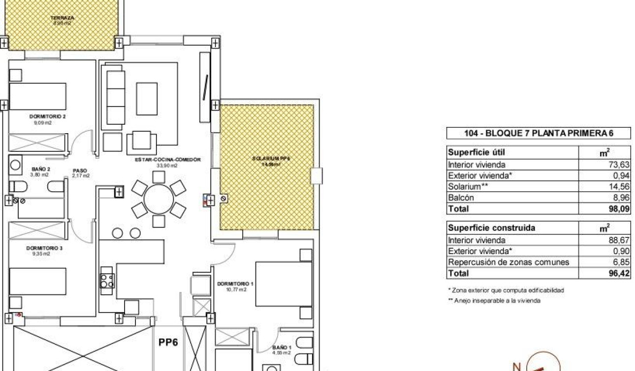
96m2
400 Mts.
RESIDENCIAL DE OBRA NUEVA EN VERA Residencial de apartamentos de nueva construcción en Vera a tan solo 400m de la inmensa playa de Vera llamada "El Playazo". Las tipologías son de planta baja con dos jardines privados, uno en cada orientación, lo que permite disfrutar del sol o de la sombra siempre que se quiera dependiendo de la hora del día o de la época del año. Las primeras plantas tienen terrazas y los áticos cuentan con grandes solariums. Todos los apartamentos tienen techos de altura extra (2,95 m) que proporcionan una gran sensación de amplitud. La cocina se entrega totalmente amueblada y equipada integrada con el salón-comedor con zona de barra. Las puertas y armarios empotrados están lacados en blanco y el suelo es de madera laminada. El aire acondicionado frío-calor y el agua caliente son generados por un dispositivo aerotérmico DAIKIN de última generación, una tecnología que ahorra hasta un 70% del consumo eléctrico en comparación con los sistemas tradicionales. Todos los cuartos de baño disponen de ducha en lugar de bañera, con espejos empotrados y también con encimera de piedra y mampara de cristal en el baño principal. Las persianas del salón y del dormitorio principal son eléctricas, herméticas y con lamas regulables. Los jardines y el solarium se entregan con los suelos acabados combinando césped artificial y un bonito pavimento imitando madera. Cada vivienda incluye una plaza de aparcamiento exterior privada. Cada bloque de la promoción dispone de un ascensor independiente. Tanto los edificios como las viviendas tienen una serie de características de arquitectura bioclimática (orientación, aislamiento, ventanas y persianas, pérgolas) que permiten una óptima regulación natural de la ventilación, la temperatura y la luz a lo largo de las diferentes estaciones del año. Las zonas comunes están formadas por plazas peatonales y zonas verdes, con una gran piscina para adultos y otra para niños en la plaza central. Toda la urbanización está libre de barreras arquitectónicas para discapacitados. Aquí la tranquilidad y el relax están garantizados. Vera es uno de los mejores lugares naturistas de Europa, reconocido por la calidad y pureza de sus aguas. Ofrece seis kilómetros de playas (Las Marinas-Bolaga, Puerto Rey, El Playazo, Quitapellejos). Vera limita con los famosos destinos turísticos como Mojácar y las Cuevas del Almanzora. Complejo residencial situado a una hora y media en coche del aeropuerto de Murcia - Corvera y a unas 2 horas del aeropuerto de Alicante.
3
2
96m2
91m2
Sí
400 Mts.