745.500€
348m2
350m2
3000 Mts.
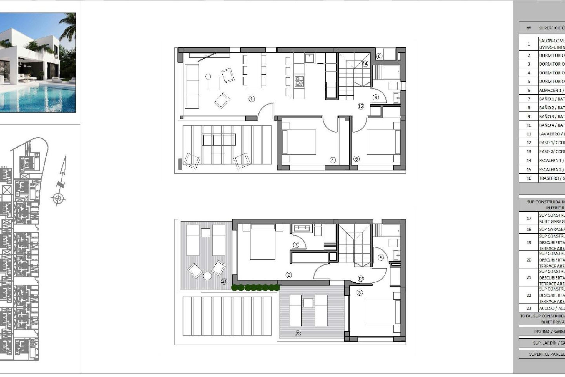
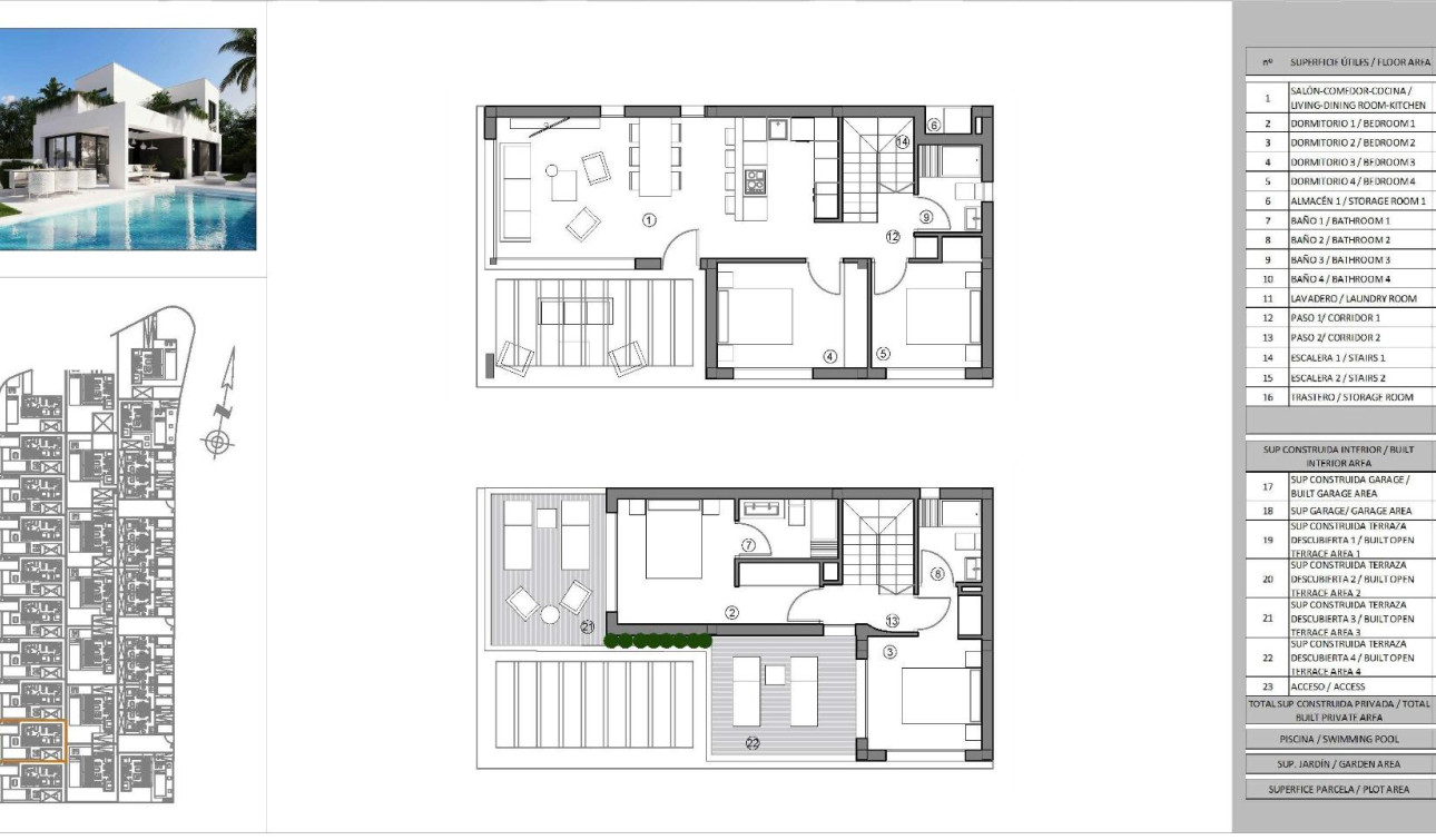
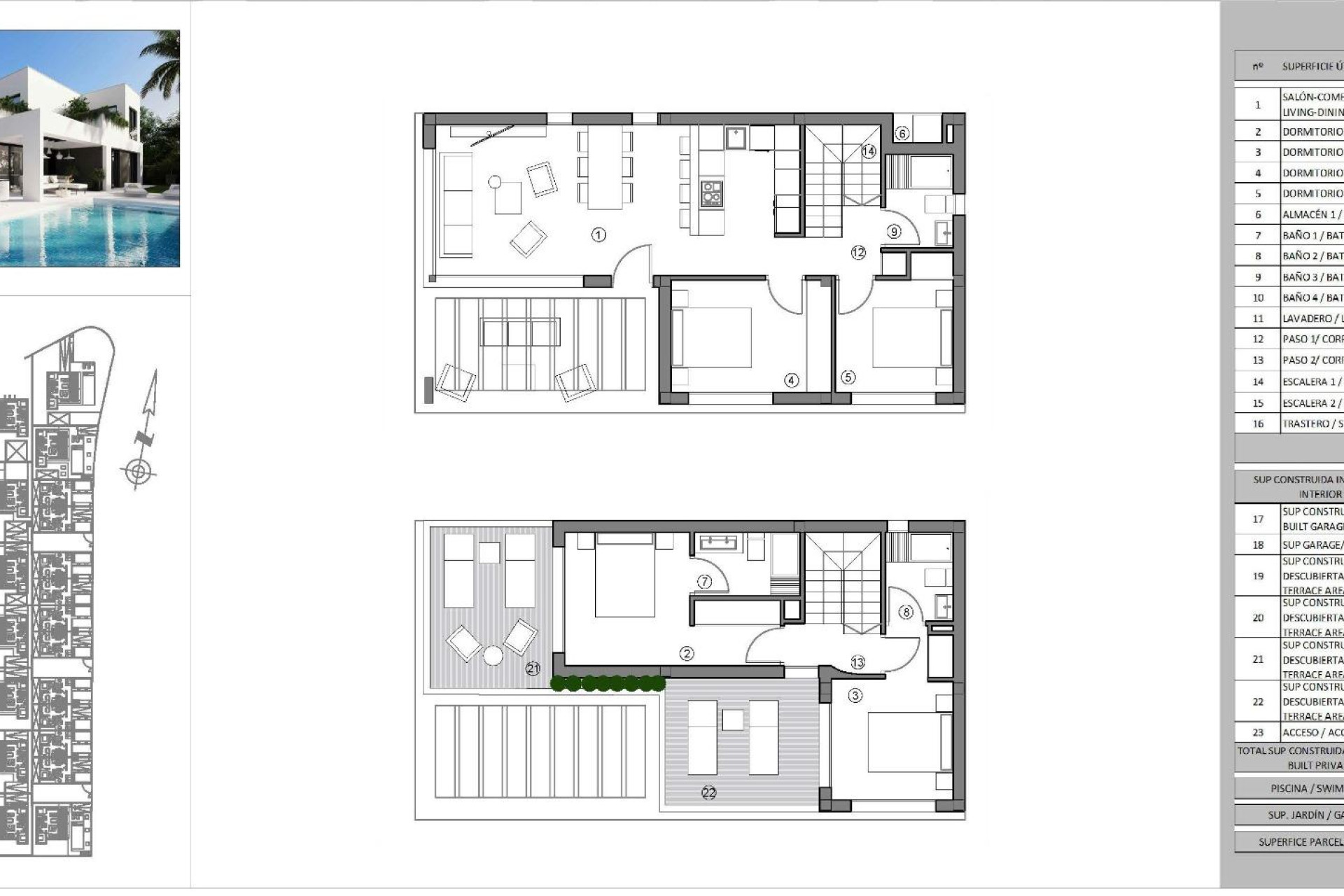
Villas de Obra Nueva en Finestrat – Lujo, Naturaleza y Vistas al Mar Exclusivo Residencial en Sierra Cortina, Benidorm-Finestrat Descubra este nuevo residencial de lujo en Sierra Cortina, Finestrat, una de las zonas más exclusivas de la Costa Blanca. Esta promoción ofrece 30 villas de diseño vanguardista, con opciones de villas pareadas e independientes, todas ellas con espectaculares vistas al mar y a la montaña. Ubicado en un entorno tranquilo, pero cerca de todas las comodidades, este residencial es ideal para quienes buscan privacidad, confort y acceso a las mejores playas y servicios de Benidorm. Diseño Moderno y Espaciosas Viviendas Las villas han sido diseñadas con un estilo contemporáneo, optimizando la luz natural y las vistas panorámicas. Podrá elegir entre varios modelos con opciones de 2 a 4 dormitorios, y algunos diseños incluyen sótano con patio inglés, permitiendo la posibilidad de añadir dormitorios adicionales. Cada vivienda cuenta con: 2 plantas con terrazas privadas con vistas al mar. Piscina privada y jardín para su disfrute. Garaje en la parcela, con espacio para su vehículo. Cocina de concepto abierto integrada en el salón. Armarios empotrados y espacios de almacenamiento. Lavadero para mayor comodidad. Ubicación Privilegiada en la Costa Blanca Este exclusivo residencial se encuentra en Sierra Cortina, una de las áreas más prestigiosas de la Costa Blanca, rodeada de naturaleza y con acceso a servicios de primer nivel. A solo 3 km del mar, esta urbanización está ubicada junto a dos campos de golf y cerca del parque temático Terra Mítica y el lujoso hotel Asia Gardens. Además, cuenta con conexión rápida con las principales carreteras y aeropuertos de la región. Distancias a los Principales Puntos de Interés Playas de Benidorm – 3 km. Campos de Golf Villaitana y Sierra Cortina – 2 km. Centro Comercial La Marina – 2 km. Parque Temático Terra Mítica – 1,5 km. Aeropuerto de Alicante – 40 km. Viva en una Zona Exclusiva con Todas las Comodidades Finestrat es un encantador municipio de la Marina Baixa, situado a pocos minutos de Benidorm. Su combinación de montaña y mar, junto con su infraestructura moderna, la convierten en una ubicación inmejorable para vivir o invertir. No pierda la oportunidad de adquirir una villa de obra nueva en esta ubicación privilegiada. Contáctenos hoy mismo para más información y para programar una visita.
5
4
348m2
167m2
350m2
Sí
3000 Mts.