2.300.000€
350m2
913m2
1800 Mts.
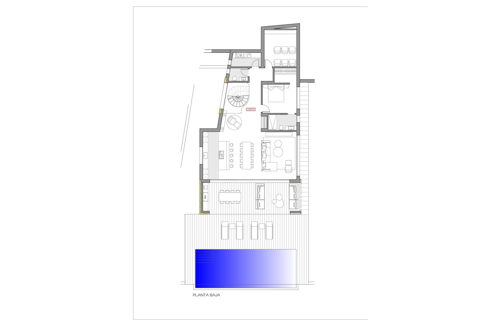
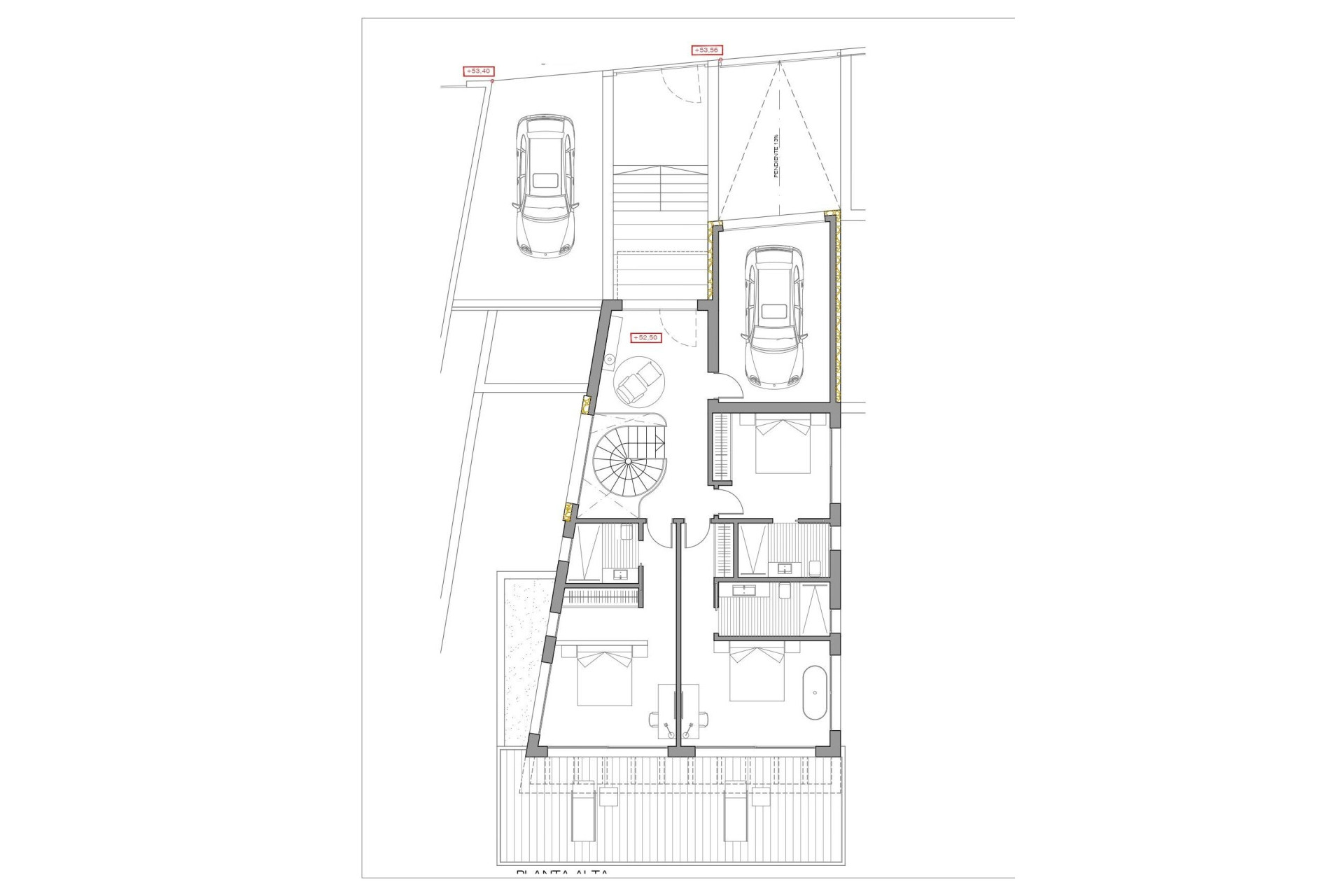
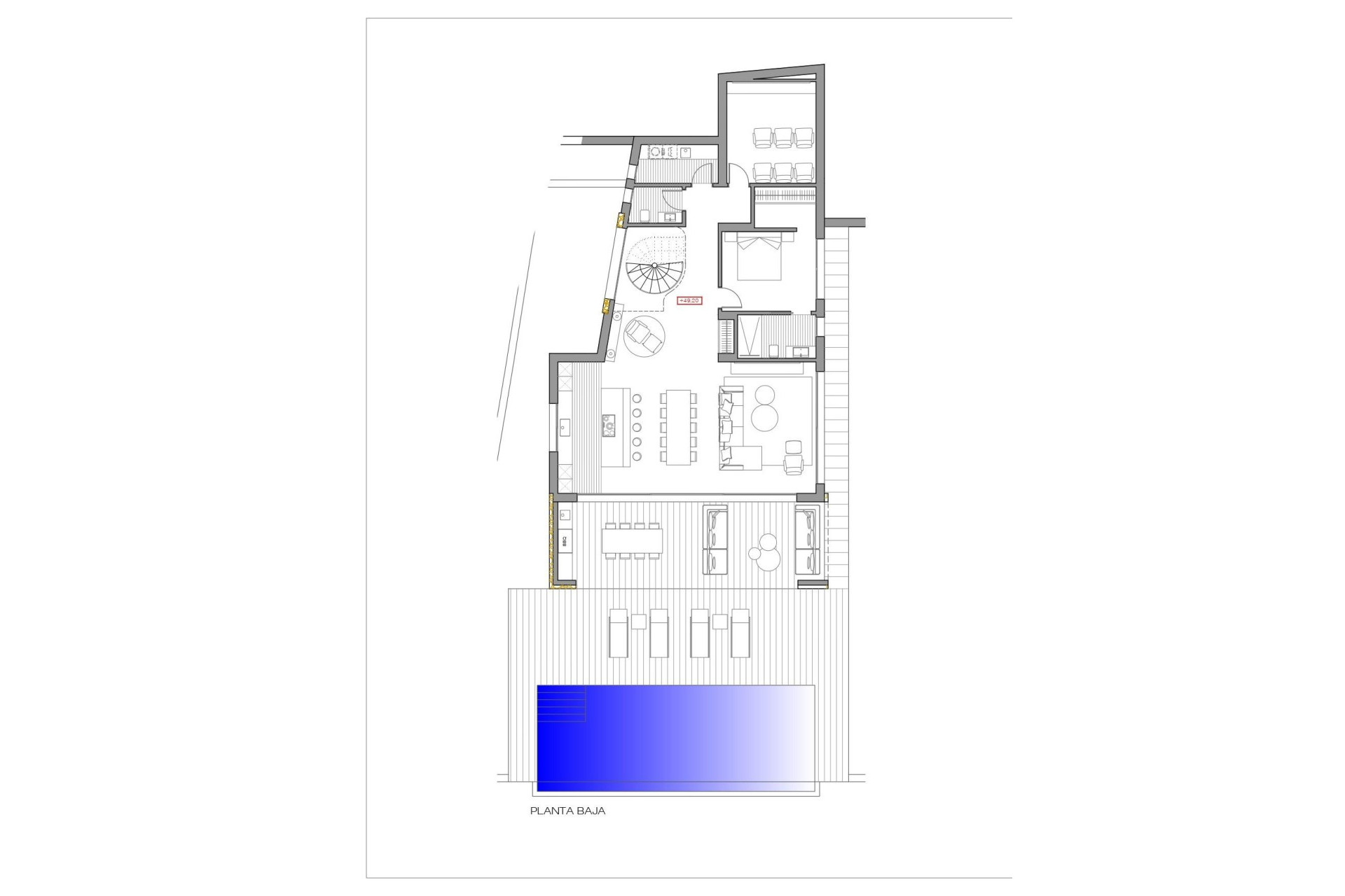
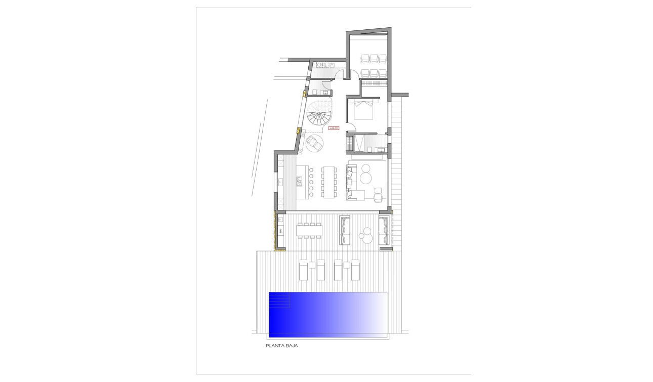
Villa de lujo de nueva construcción con vistas al mar en Moraira Ubicación privilegiada cerca de la playa y del centro de la ciudad Esta villa de lujo en Moraira está perfectamente situada a solo 1,8 km de la playa y del animado centro de la ciudad, lo que ofrece un equilibrio ideal entre privacidad y comodidad. Moraira, una encantadora ciudad costera de la Costa Blanca, es conocida por sus playas de arena fina, sus aguas cristalinas y su estilo de vida mediterráneo. La localidad cuenta con una amplia selección de restaurantes, bares, supermercados y un animado puerto deportivo. El aeropuerto internacional de Alicante se encuentra a unos 90 km (1h15) por la autopista A7, mientras que el aeropuerto de Valencia se encuentra a una distancia similar al norte, lo que facilita el acceso. Diseño moderno con interiores espaciosos Construida sobre una generosa parcela de 912 m², esta villa cuenta con una superficie total construida de 350 m² distribuidos en dos plantas. La vivienda incluye 4 dormitorios con baños en suite y un aseo de invitados, todos ellos acabados con materiales de primera calidad. La planta baja presenta un luminoso salón-comedor diáfano que conecta a la perfección con una moderna cocina con isla central. Desde aquí, unas grandes puertas correderas dan acceso directo a la terraza, la cocina de verano y la piscina privada. Un dormitorio con baño en suite, un aseo de invitados, un lavadero y una versátil sala polivalente completan esta planta. Elegante planta superior con vistas al mar Una escalera de diseño conduce a la planta superior, que alberga tres dormitorios adicionales con baños en suite, así como un amplio vestíbulo y una terraza privada con espectaculares vistas al mar. La propiedad también ofrece un garaje, aparcamiento privado, calefacción por suelo radiante, aire acondicionado, doble acristalamiento y una puerta de seguridad reforzada, lo que garantiza el máximo confort y tranquilidad. Oasis mediterráneo al aire libre El exterior ha sido diseñado como un refugio privado, combinando jardines paisajísticos, terrazas cubiertas y descubiertas, una piscina privada con ducha exterior y una zona de barbacoa perfecta para el entretenimiento. La orientación sureste garantiza mucha luz natural durante todo el día, haciendo que cada rincón de la villa sea luminoso y acogedor. Estilo de vida en Moraira Moraira es conocida por su ambiente relajado y cosmopolita. Las familias disfrutarán de su segura playa de arena, mientras que los amantes de la naturaleza podrán disfrutar de impresionantes paseos por la costa con vistas al Peñón de Ifach en Calpe, situado a solo 12 km. Los amantes del golf también encontrarán excelentes campos de golf a entre 10 y 15 km. La villa de sus sueños le espera Disfrute de una vida de lujo en Moraira con esta exclusiva villa. Póngase en contacto con nosotros hoy mismo para concertar una visita y hacer de este paraíso mediterráneo su nuevo hogar.
4
4
350m2
240m2
913m2
Sí
1800 Mts.