459.900€
97m2
186m2
12000 Mts.
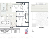
Casas adosadas de nueva construcción estilo Ibiza en Dolores, Costa Blanca Exclusivas villas residenciales en un entorno tranquilo Esta urbanización boutique consta de solo 6 casas adosadas de nueva construcción con una elegante arquitectura estilo Ibiza, situadas en la encantadora localidad de Dolores, al sur de la provincia de Alicante. Situadas en una nueva zona de expansión cerca del centro de la ciudad, estas viviendas ofrecen un entorno residencial tranquilo, a poca distancia de los servicios locales, como tiendas, restaurantes, supermercados y centros médicos. Dolores está rodeada por la fértil campiña de la Vega Baja, conocida por su ambiente relajado y su excelente calidad de vida. Diseño de una sola planta con amplias zonas exteriores Cada villa está diseñada en una sola planta para ofrecer el máximo confort y accesibilidad. La distribución interior incluye una cocina abierta conectada a un luminoso salón-comedor, tres amplios dormitorios y dos modernos cuartos de baño. En el exterior, cada propiedad cuenta con una parcela privada con terraza, jardín paisajístico, piscina privada y una plaza de aparcamiento en la parcela (excepto 2 unidades). Uno de los aspectos más destacados de estas viviendas es el generoso solárium privado, que ofrece vistas abiertas al campo circundante y es el espacio perfecto para disfrutar del clima mediterráneo durante todo el año. Acabados modernos y características de eficiencia energética Estas villas de nueva construcción están construidas con materiales modernos y acabados de calidad. Entre sus características se incluyen persianas eléctricas, un completo paquete de iluminación interior y exterior, y baños equipados con muebles, espejos y mamparas de ducha. El agua caliente se suministra a través de un eficiente sistema aerotérmico, lo que mejora la eficiencia energética y la sostenibilidad. Las viviendas también incluyen la preinstalación de aire acondicionado por conductos, lo que permite a los futuros propietarios personalizar el sistema de climatización según sus necesidades. Ubicación bien comunicada, cerca de playas y campos de golf Dolores goza de una excelente ubicación con fácil acceso a las principales zonas costeras y de ocio de la Costa Blanca. Las playas de arena de Guardamar del Segura y Torrevieja se encuentran a unos 12 km y ofrecen largos paseos marítimos, dunas naturales y una amplia gama de actividades playeras. Varios campos de golf muy conocidos, como La Finca, La Marquesa y Vistabella Golf, se encuentran a entre 10 y 15 km. En las cercanías, en Rojales y Torrevieja, se encuentran parques acuáticos y atracciones de ocio. Distancias clave y puntos de interés Las playas de Guardamar y Torrevieja se encuentran a unos 12 km. El aeropuerto de Alicante está a unos 30 km o 25 minutos en coche, y ofrece conexiones regulares con las principales ciudades europeas. La ciudad de Elche está a unos 20 km, mientras que el centro de Alicante se encuentra a unos 35 km. Los puertos deportivos y puertos cercanos de Guardamar y Torrevieja se suman al atractivo del estilo de vida. Su hogar mediterráneo le espera Estas exclusivas casas adosadas de estilo ibicenco en Dolores ofrecen una vida moderna, privacidad y una excelente ubicación cerca de playas, campos de golf y servicios. Póngase en contacto con nosotros hoy mismo para obtener más información o concertar una visita y asegurarse su nueva casa en la Costa Blanca.
3
2
97m2
90m2
186m2
Sí
12000 Mts.