130.000€
70m2
700 Mts.
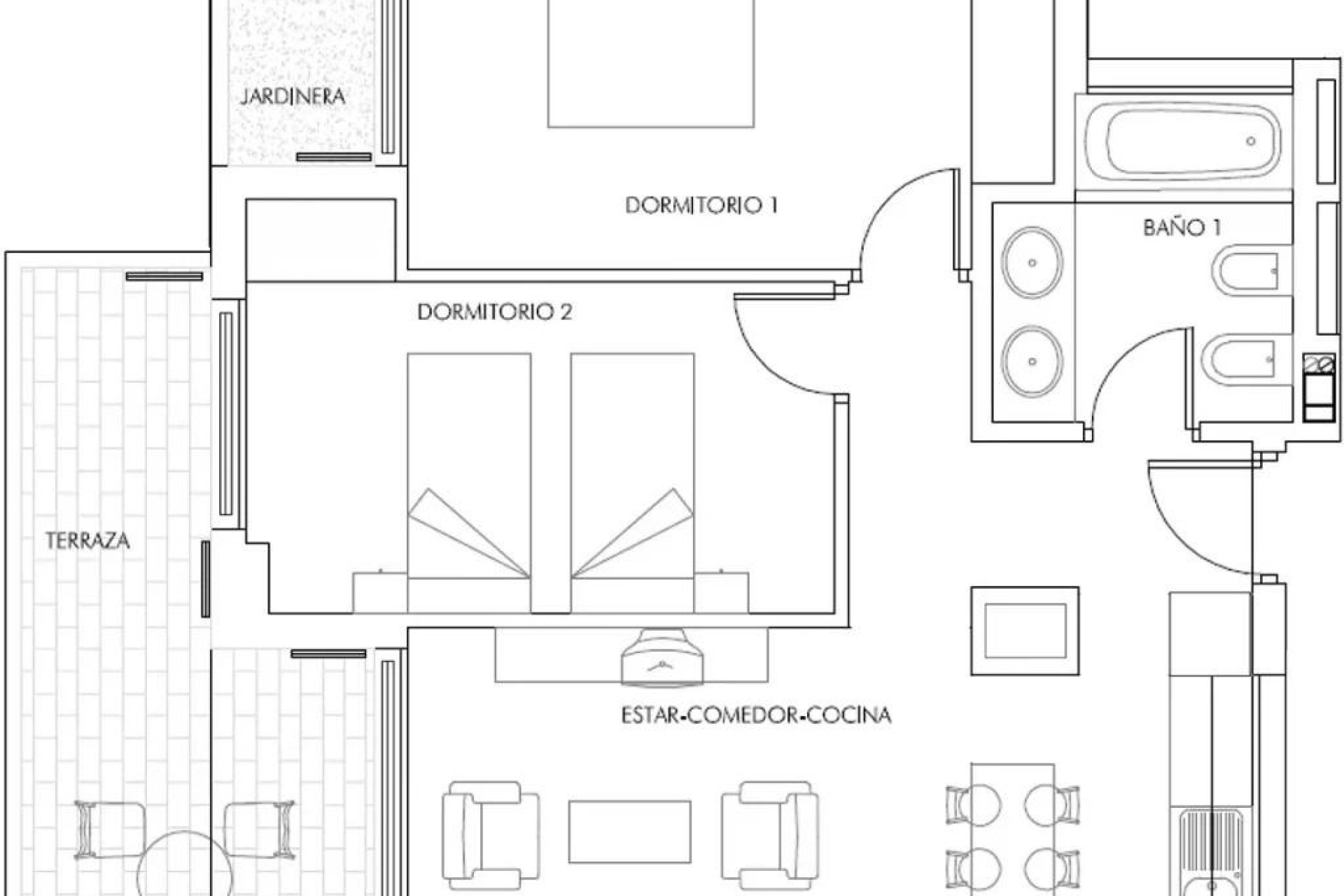
Apartamentos con licencia turística para inversión cerca de la playa en Vera, Almería Exclusiva promoción de estilo resort en Puerto Vera Descubra una oportunidad única para invertir en un complejo de apartamentos turísticos con gestión integral situado en Puerto Vera, en la codiciada zona de Puerto Rey, en Vera, Almería. Esta exclusiva promoción consta de 181 apartamentos totalmente renovados distribuidos en 7 bloques, diseñados para ofrecer una combinación perfecta de estilo de vida, comodidad y rentabilidad. Situado a solo 700 metros de la playa de Puerto Rey y a un breve paseo de El Playazo de Vera, esta ubicación es ideal para disfrutar del clima mediterráneo y de un entorno costero virgen. Una inversión inteligente con potencial de alquiler garantizado Este proyecto está diseñado específicamente para inversores que buscan una propiedad sin complicaciones con una sólida rentabilidad por alquiler. Cada apartamento cuenta con licencia turística y está gestionado por un operador profesional. Los propietarios pueden disfrutar del uso personal de la propiedad hasta 2 meses al año, mientras que la empresa gestora se encarga de los alquileres el resto del tiempo, generando ingresos. Además, este tipo de propiedad se beneficia de la devolución del IVA, lo que ofrece importantes ventajas financieras a los compradores. Apartamentos modernos, totalmente equipados y amueblados La promoción ofrece apartamentos de 1, 2 y 3 dormitorios con 1 o 2 baños, disponibles como unidades en planta baja con amplias terrazas, apartamentos en plantas intermedias o áticos, algunos con soláriums privados. Todas las viviendas se entregan totalmente amuebladas y equipadas, incluyendo aire acondicionado, WiFi y cocinas modernas con electrodomésticos como horno, lavavajillas, microondas y lavadora. Cada propiedad incluye también una plaza de aparcamiento subterráneo. Instalaciones y servicios de estilo resort Los residentes y huéspedes pueden disfrutar de una amplia gama de instalaciones comunes de primera calidad diseñadas para crear una experiencia vacacional completa. Entre ellas se incluyen piscinas al aire libre, un gimnasio totalmente equipado, un centro de negocios, un restaurante, un minicine y un club infantil exclusivo con zona de juegos. La promoción está diseñada para ofrecer comodidad, ocio y relajación en un solo lugar, lo que la hace muy atractiva tanto para turistas como para inversores. Descubra Vera y sus alrededores Vera es una encantadora localidad costera conocida por sus playas naturales y su estilo de vida relajado. La zona ofrece fácil acceso a atracciones culturales y naturales como Mojácar (a 8 km), el puerto deportivo de Garrucha (a 6 km), el Parque Natural de Cabo de Gata (a 60 km) y el desierto de Tabernas (a 70 km). Los amantes del golf apreciarán los campos cercanos, como Desert Springs Golf (a 8 km), Valle del Este Golf (a 5 km) y Marina Golf Mojácar (a 7 km). El aeropuerto de Almería se encuentra a unos 85 km. La nueva estación de tren de alta velocidad que se va a construir mejorará significativamente las comunicaciones en la zona y también el valor de las propiedades en esta ubicación. Una oportunidad de inversión única en la Costa de Almería Esta promoción combina ubicación, servicios y rentabilidad, lo que la convierte en una opción ideal para inversores que buscan una rentabilidad segura y atractiva. Póngase en contacto con nosotros hoy mismo para recibir más información o concertar una visita y asegurarse su propiedad en Vera. 604
2
1
70m2
63m2
Sí
700 Mts.