2 Bed 1 Bad Nieuwbouw Woningen Vrijstaande villa in Fuente Alamo - Murcia

Ref: RG-37408

242.000€

Ref: RG-37408
Gebouwd Gebouwd:

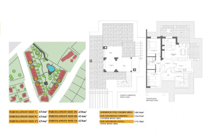
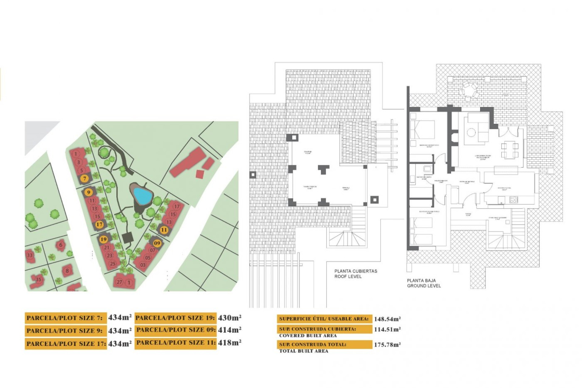
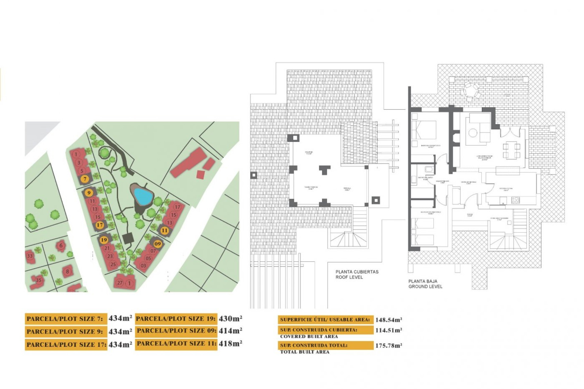
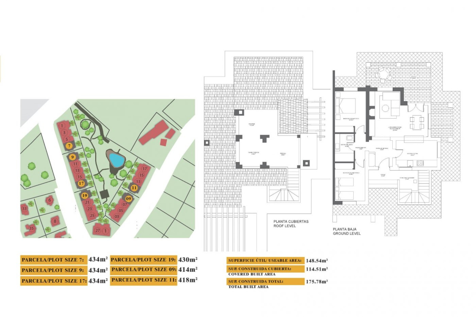
175m2

Plot Plot:

430m2

Afstand naar het strand Afstand naar het strand:

7500 Mts.

2 Bed 1 Bad Nieuwbouw Woningen Vrijstaande villa in Fuente Alamo - Murcia
Gebouwd:

175m2

Plot:

430m2

Ref: RG-37408

242.000€

  • 175m2
  • 430m2
  • 2
  • 1

Beschrijving

Kenmerken

Slaapkamers Slaapkamers:

2

Bad Bad:

1

Gebouwd Gebouwd:

175m2

Nuttig Nuttig:

148m2

Plot Plot:

430m2

Afstand naar het strand Afstand naar het strand:

7500 Mts.

Tuin
Omheind
Aantal parkeerplaatsen: 1
Airconditioning: vooraf geïnstalleerd
Dubbele slaapkamers: 2
Sleutel gereed
Ligging: Landelijk, Urbanisatie
Terras: 45 m².
Parkeerplaats
Bruikbare bouwruimte: 148 Msq.
Strand: 7500 meter
Opslag / Trastero

Plaats

Vraag voor informatie

Neem contact met ons op via WhatsApp of vul onderstaand formulier in.

Responsable del tratamiento: T.P.S. Homes Inmobiliaria CB, Finalidad del tratamiento: Gestión y control de los servicios ofrecidos a través de la página Web de Servicios inmobiliarios, Envío de información a traves de newsletter y otros, Legitimación: Por consentimiento, Destinatarios: No se cederan los datos, salvo para elaborar contabilidad, Derechos de las personas interesadas: Acceder, rectificar y suprimir los datos, solicitar la portabilidad de los mismos, oponerse altratamiento y solicitar la limitación de éste, Procedencia de los datos: El Propio interesado, Información Adicional: Puede consultarse la información adicional y detallada sobre protección de datos Aquí.
WhatsApp
Facebook Instagram Youtube