699.000€
153m2
504m2
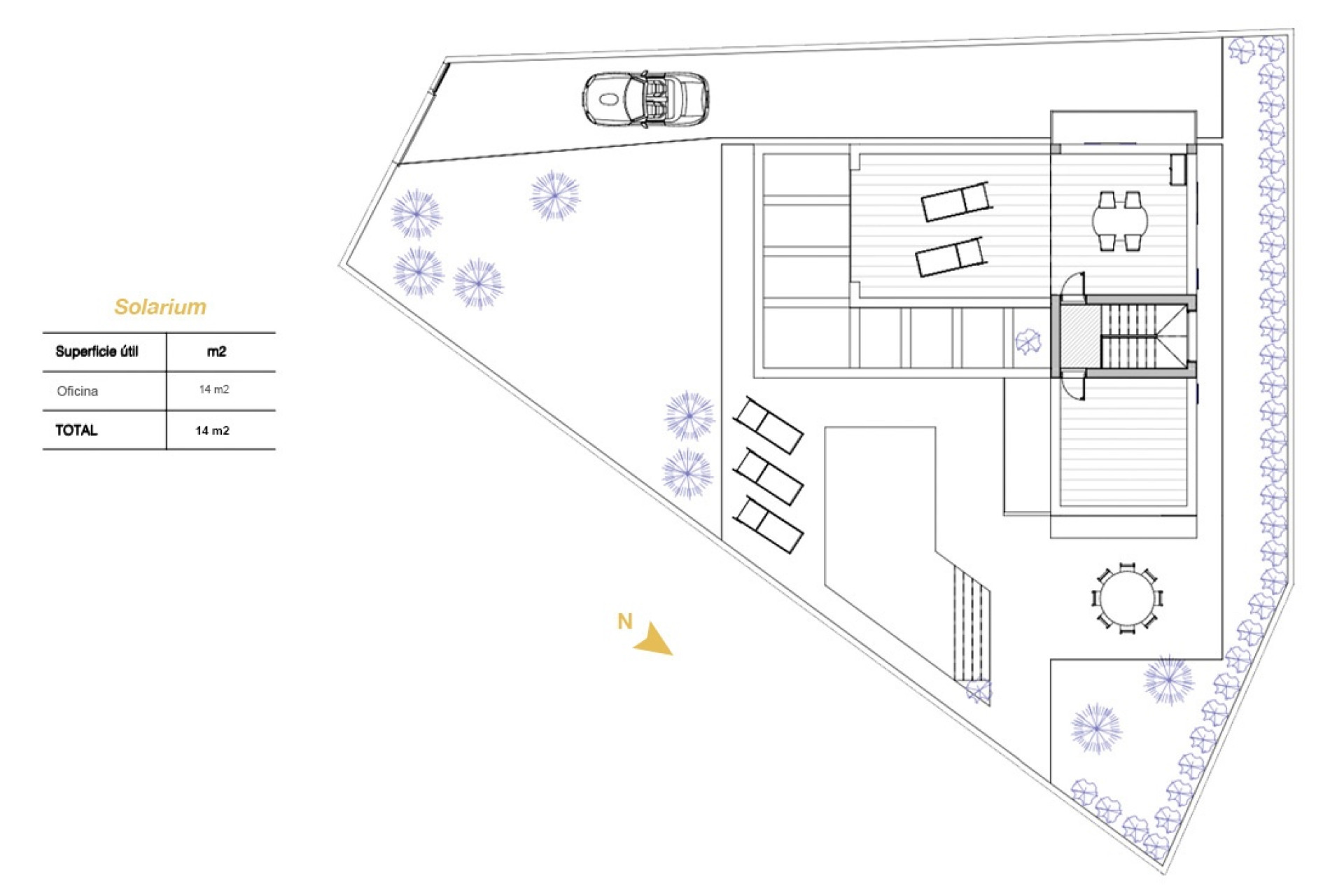
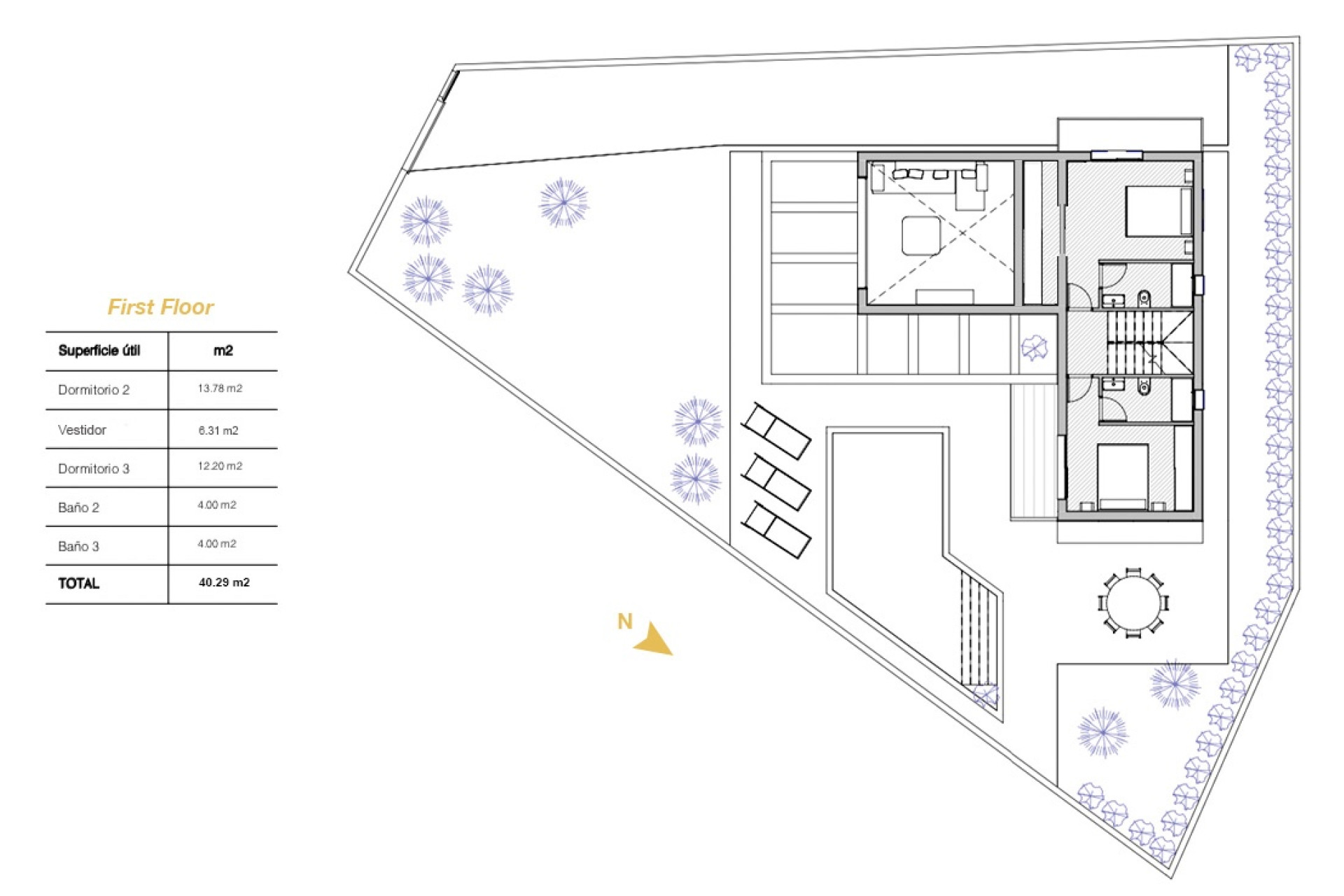
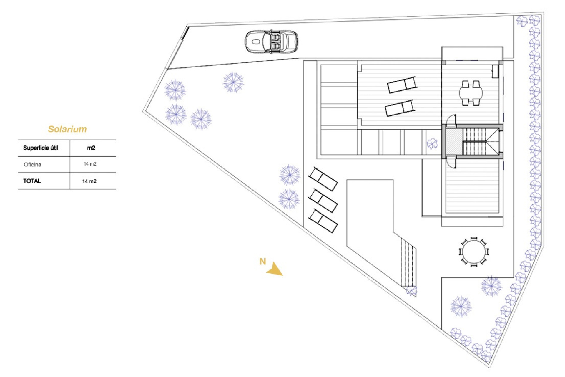
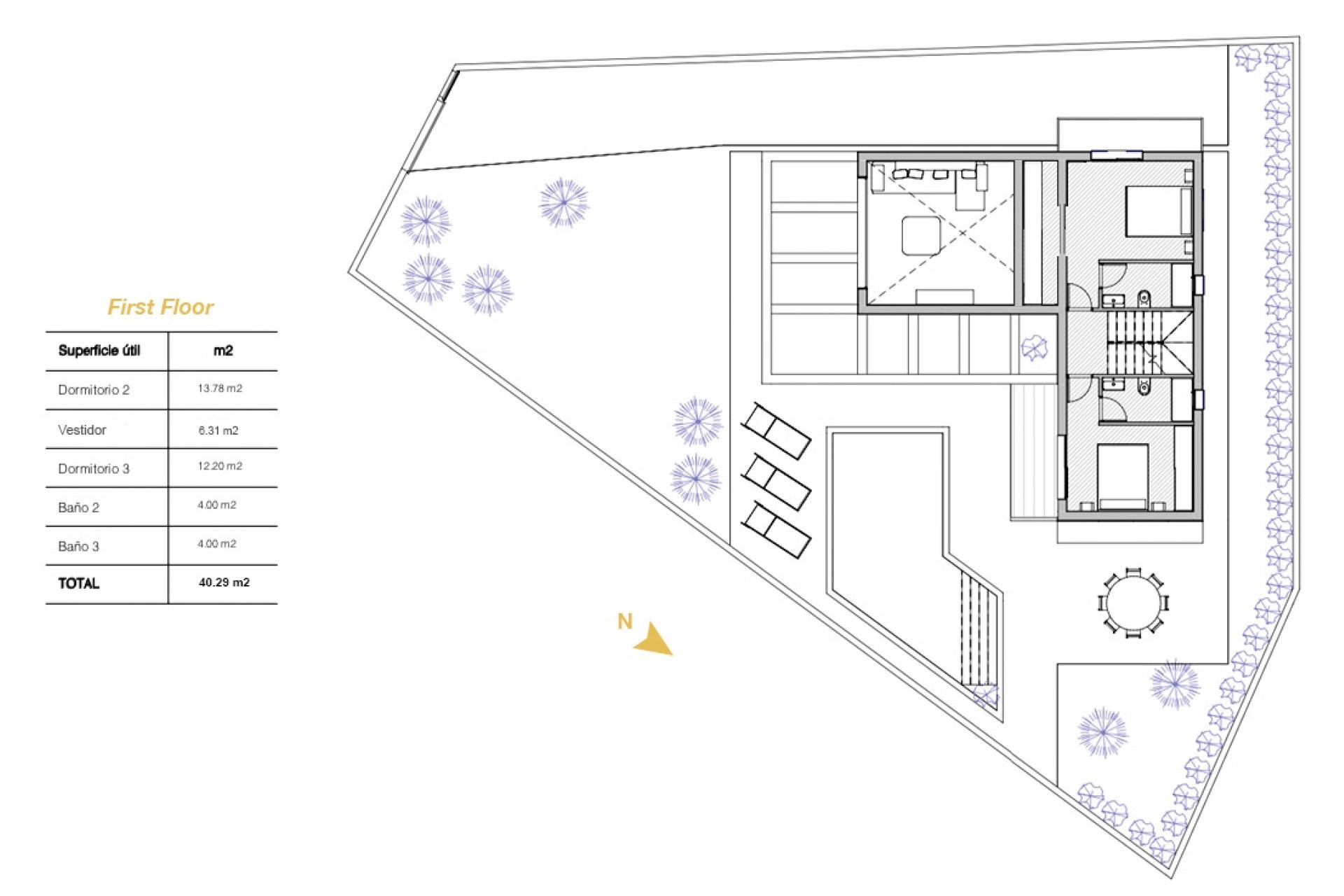
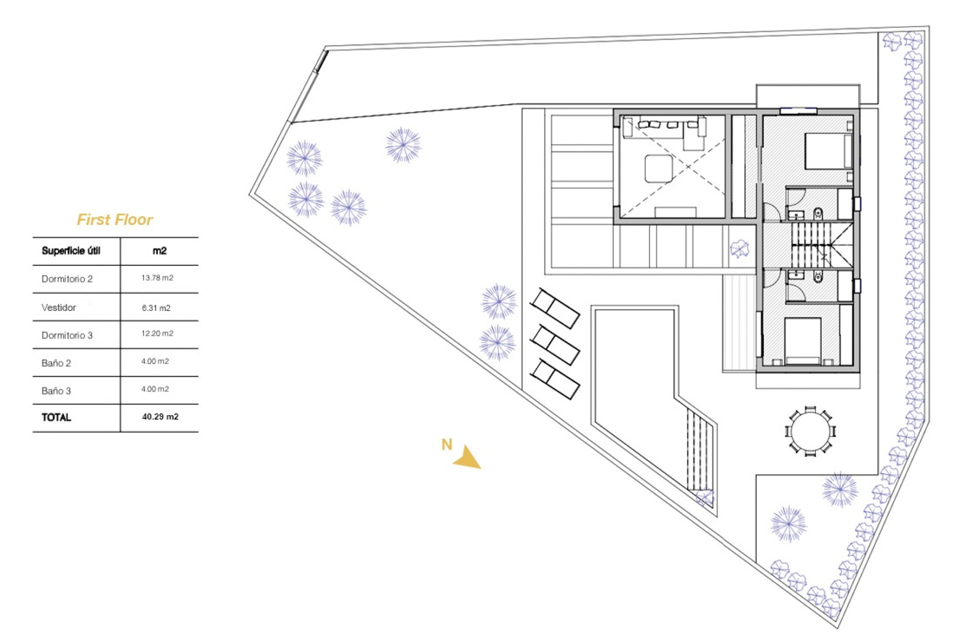
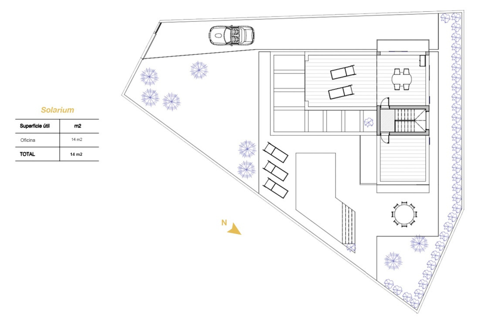
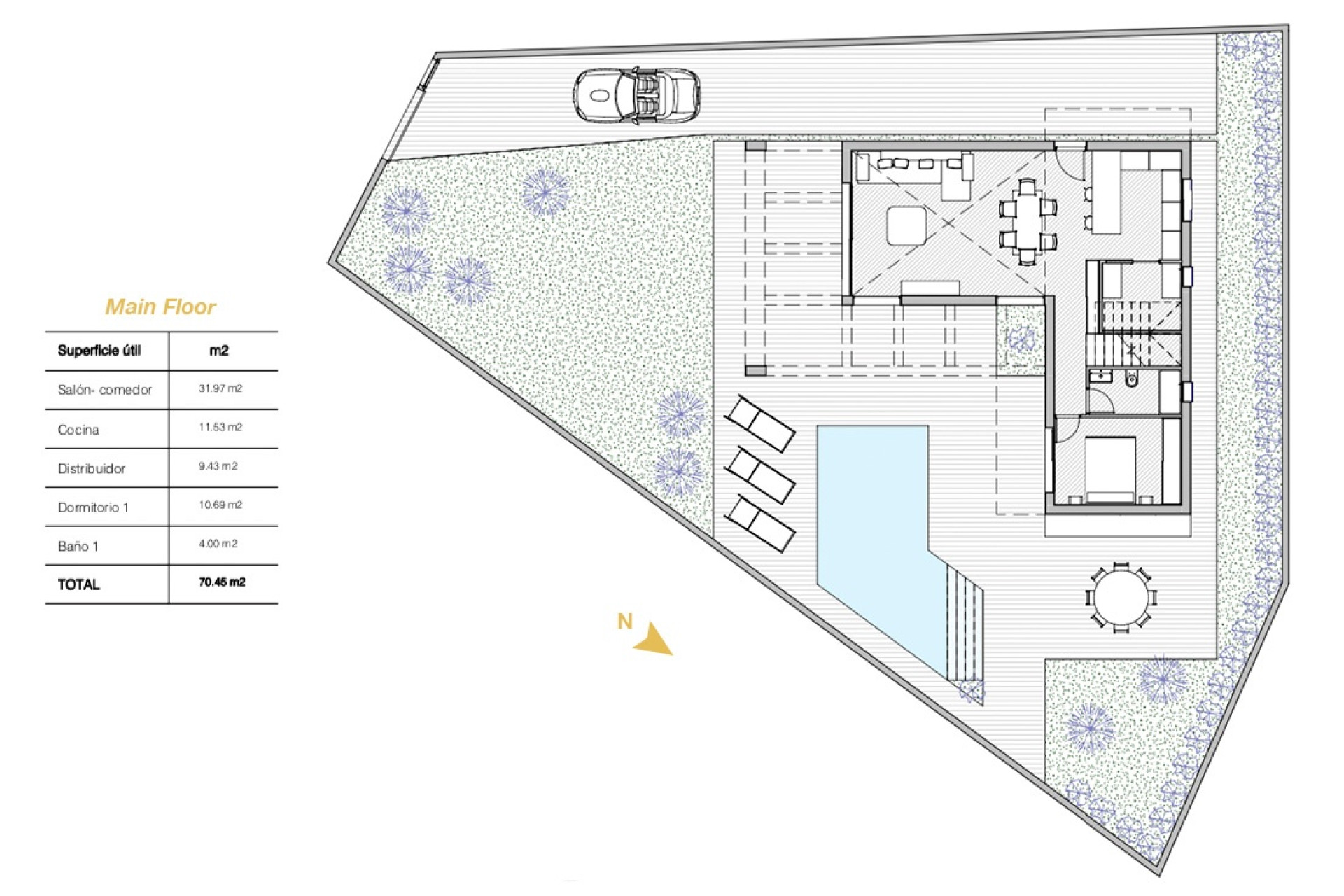
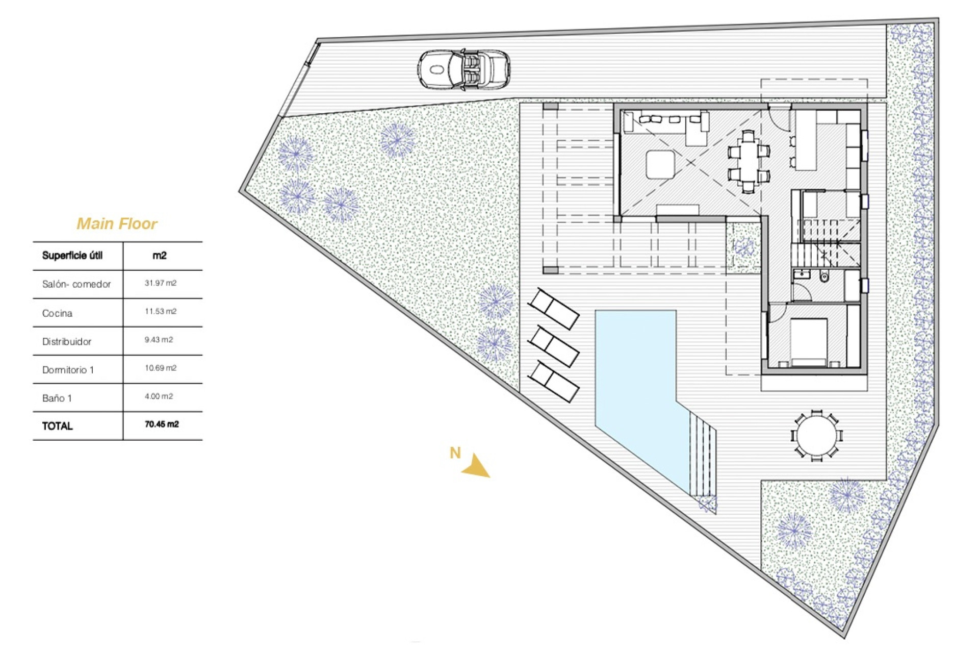
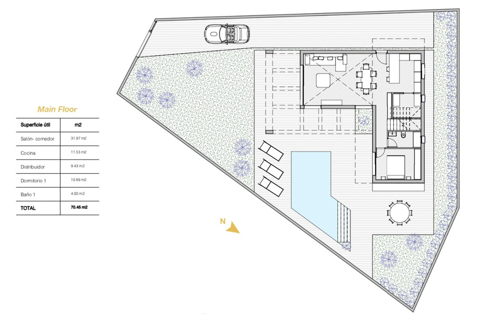
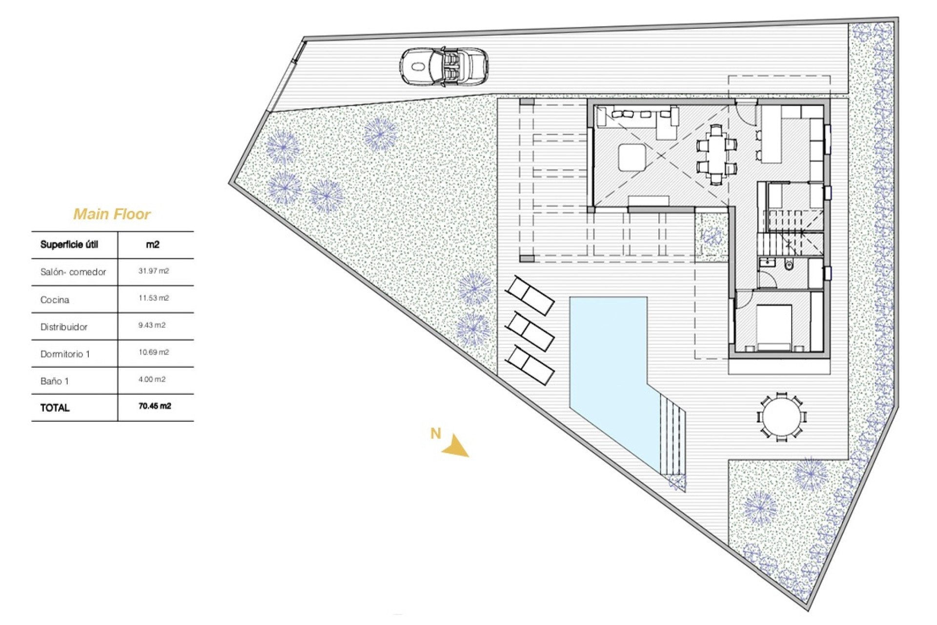
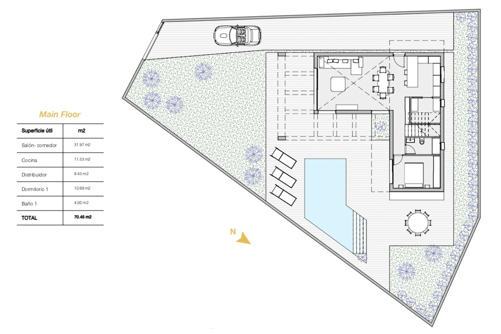
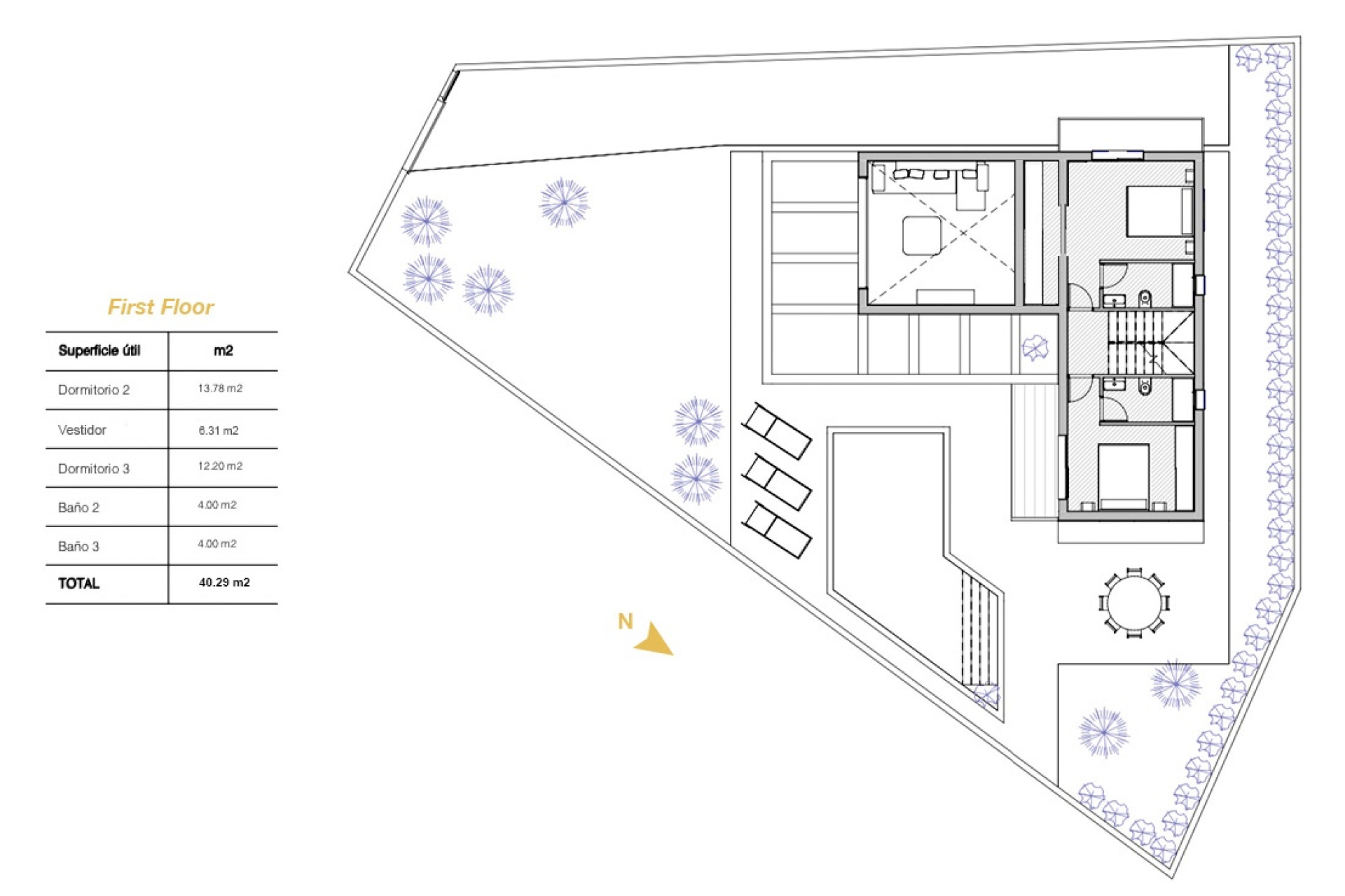
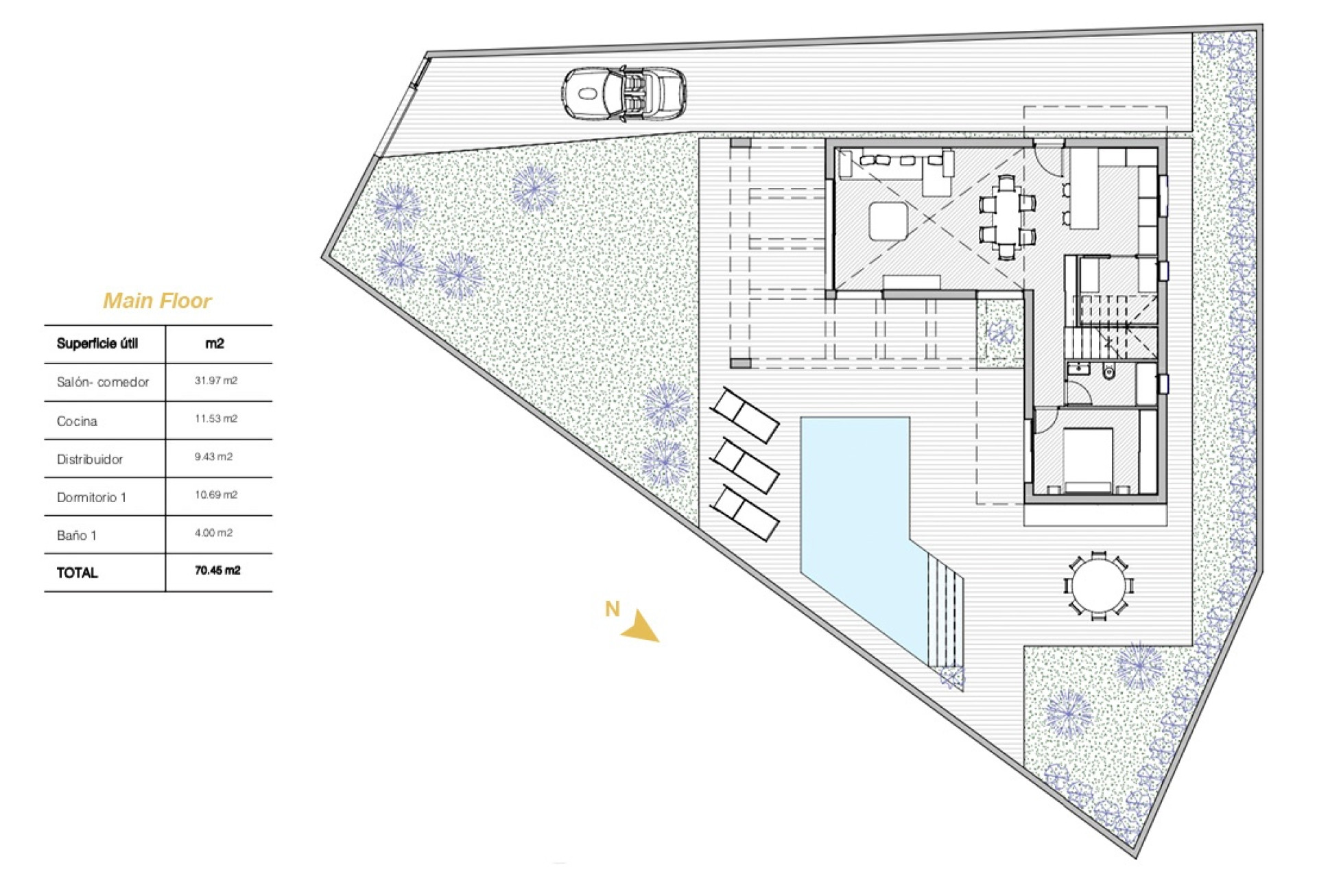
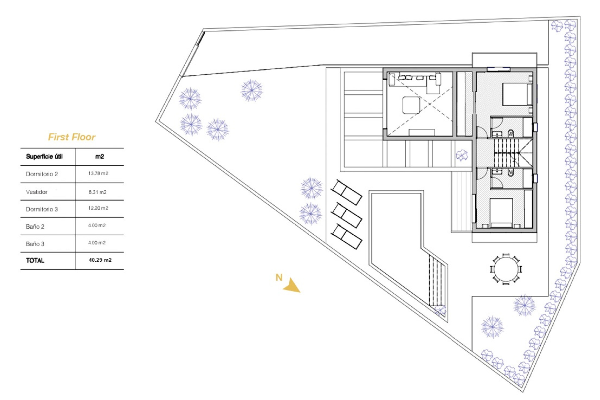
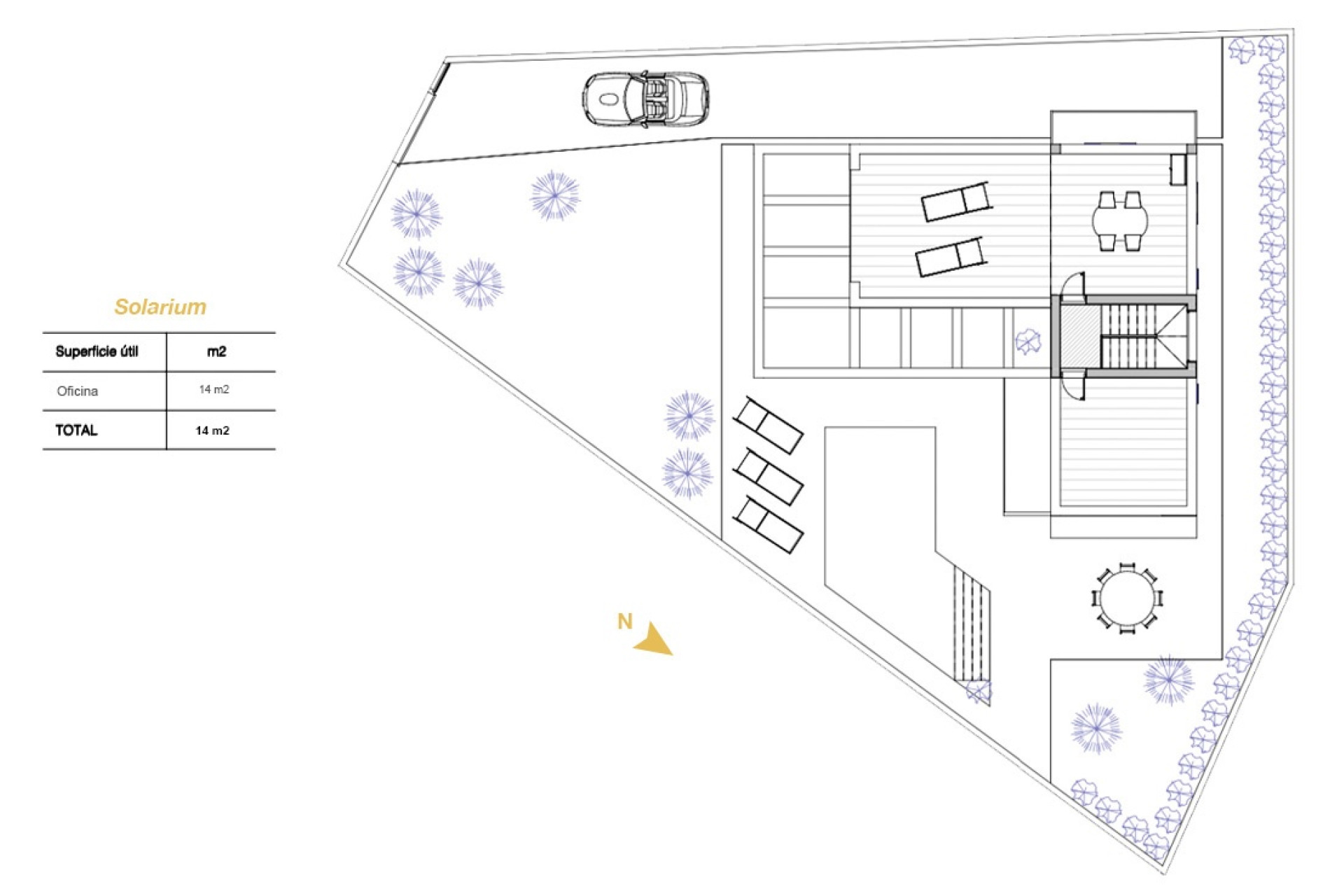
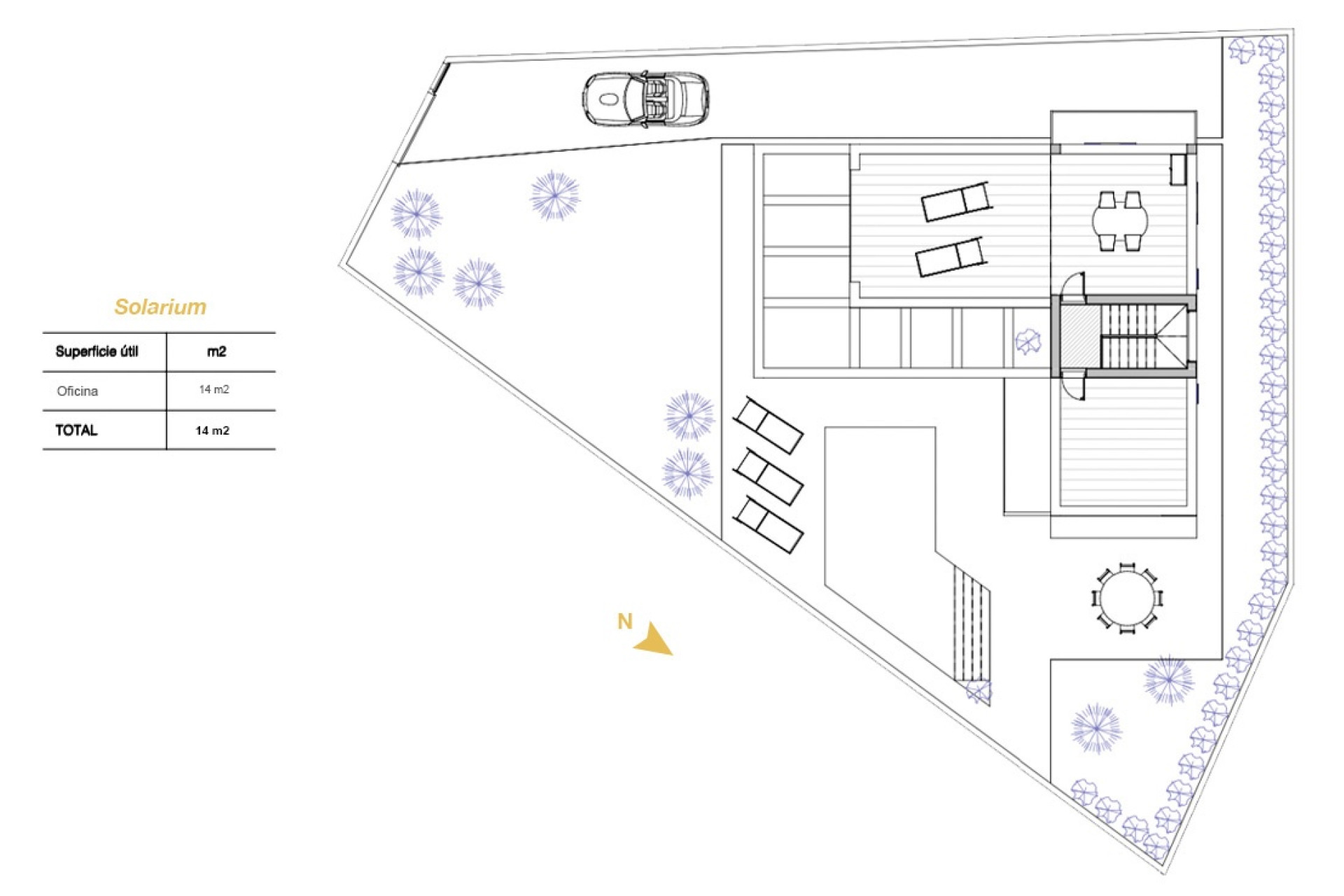
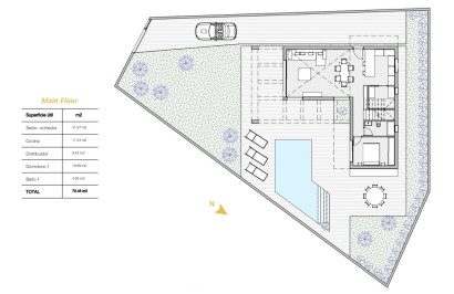
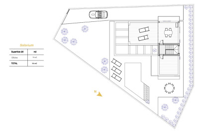
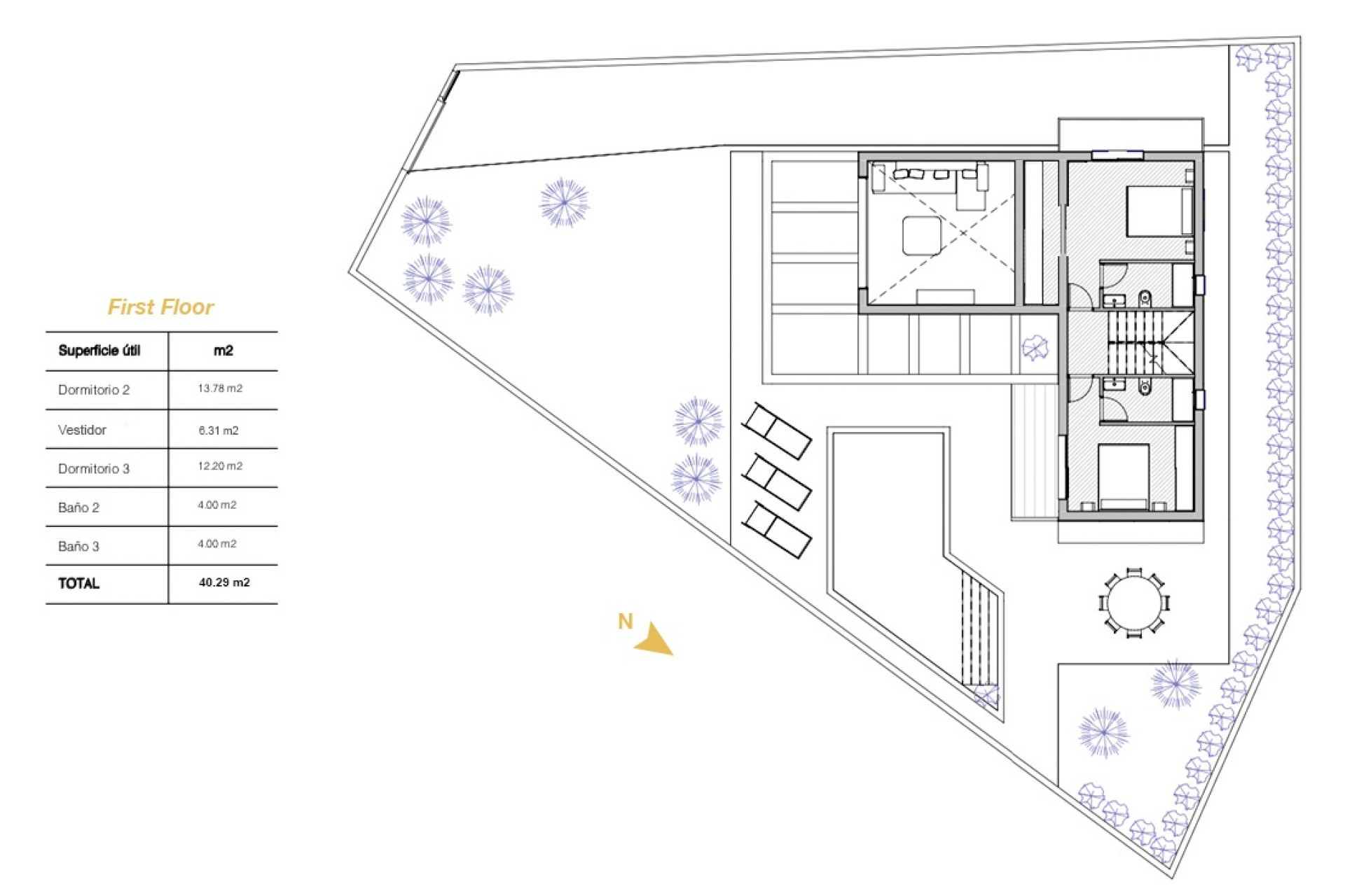
HEDENDAAGSE VILLA MET 4 SLAAPKAMERS EN PRIVÉZWEMBAD IN HET CENTRUM VAN CIUDAD QUESADA Deze elegante, op het zuiden georiënteerde, moderne villa , gebouwd in 2020 en zorgvuldig onderhouden, beschikt over een stijlvol ontwerp, ruime woonruimtes en een zeer gewilde centrale locatie in Ciudad Quesada . De woning combineert moderne architectuur met alledaags comfort en is ideaal voor gezinsbewoning, als permanente residentie of voor luxe vakanties . Belangrijkste kenmerken Moderne vrijstaande villa (gebouwd in 2020) 4 slaapkamers en 3 moderne badkamers 153 m² bebouwd op een privéperceel van 533 m² Privé L-vormig zoutwaterzwembad (ca. 7 x 4 meter) Beveiligde parkeergelegenheid buiten de openbare weg bij de afgesloten ingang. Open keuken met hoogwaardige apparatuur. Gelegen op het zuiden, zodat u de hele dag van de zon kunt genieten. Dakterrasol met panoramisch uitzicht Wasruimte en berging Airconditioning (koeling en verwarming) Vloerverwarming in badkamers Zonnepanelen Energie-efficiëntieklasse: B Op loopafstand van winkels, cafés en andere voorzieningen (ca. 300 m). Eigendomsomschrijving De villa is verdeeld over drie verdiepingen , zorgvuldig ontworpen om optimaal te profiteren van natuurlijk licht, comfort en functionaliteit. De begane grond beschikt over een lichte, open woonkamer, eetkamer en keuken, wat zorgt voor een uitnodigende en ruime sfeer. Grote ramen bieden uitzicht op het privézwembad en de tuin, waardoor binnen- en buitenleven naadloos in elkaar overlopen. Een aparte wasruimte zorgt voor extra gemak, terwijl een elegante gastenslaapkamer en een complete badkamer deze verdieping completeren. Op de eerste verdieping vindt u twee ruime slaapkamers, elk met een eigen badkamer. Een van de slaapkamers heeft een kleedkamer, terwijl de andere toegang biedt tot een privébalkon met uitzicht op de tuin en het zwembad. De bovenverdieping biedt een veelzijdige vierde ruimte, ideaal als kantoor, atelier of extra gastenverblijf. Vanuit hier bieden twee ruime terrassen een panoramisch uitzicht over Ciudad Quesada, het omliggende landschap, de zoutvlakten en zelfs een glimp van de Middellandse Zee . Buitenruimtes De buitenruimtes zijn ontworpen voor eenvoudig onderhoud en plezier het hele jaar door, met meerdere terrassen om te dineren en te ontspannen, een solarium en een privézwembad met zout water. Het volledig omheinde terrein biedt tevens beveiligde parkeergelegenheid bij de ingang. Locatie en levensstijl Deze villa is gelegen in een rustige doodlopende straat, op slechts enkele minuten van het centrum van Ciudad Quesada , en geniet daarmee van een van de meest gunstige en gewilde locaties in de omgeving. Dagelijkse voorzieningen zoals supermarkten, cafés, restaurants, apotheken en winkels bevinden zich op slechts 300 meter loopafstand . Ciudad Quesada is een levendige en gevestigde gemeenschap die een breed scala aan vrijetijdsactiviteiten biedt, waaronder golfen bij La Marquesa , bowlen, minigolf, een waterpark, fietsroutes en schilderachtige natuurwandelingen. De aanwezigheid van prestigieuze Noorse en Britse internationale scholen versterkt de aantrekkingskracht van het gebied voor gezinnen. Stranden van Guardamar del Segura: ca. 9 kilometer (10 minuten) Luchthaven Alicante: ca. 38 km (35 minuten) La Marquesa Golf: ca. 4 kilometer Winkels en voorzieningen: ca. 300 m Deze centrale maar toch rustige locatie maakt de woning perfect geschikt voor permanente bewoning, vakantiegebruik of als waardevolle investering voor verhuur . Aanvullende details Dubbelglasramen voor energie-efficiëntie Onderhoudsvriendelijk zoutwaterzwembad Diverse terrassen voor vermaak en ontspanning. Solarium met panoramisch en gedeeltelijk zeezicht Hedendaagse afwerkingen en hoogwaardige vloeren. Een oriëntatie op het zuiden zorgt voor maximale natuurlijke lichtinval in het hele huis. Volgende stappen Neem contact met ons op om een privébezoek aan deze uitzonderlijke villa te regelen, zowel fysiek als virtueel. Op aanvraag is er ook een complete videorondleiding beschikbaar, zodat u vanuit elke plek ter wereld van het pand kunt genieten.
4
3
153m2
504m2
Ja