3 Bed 2 Bad Nieuwbouw Woningen Appartement / Flat in Villajoyosa - Costa Blanca South

Ref: RG-83297

730.000€

Ref: RG-83297
Gebouwd Gebouwd:

115m2

Afstand naar het strand Afstand naar het strand:

200 Mts.

3 Bed 2 Bad Nieuwbouw Woningen Appartement / Flat in Villajoyosa - Costa Blanca South
Gebouwd:

115m2

Ref: RG-83297

730.000€

  • 115m2
  • 3
  • 2
  •  

Beschrijving

Kenmerken

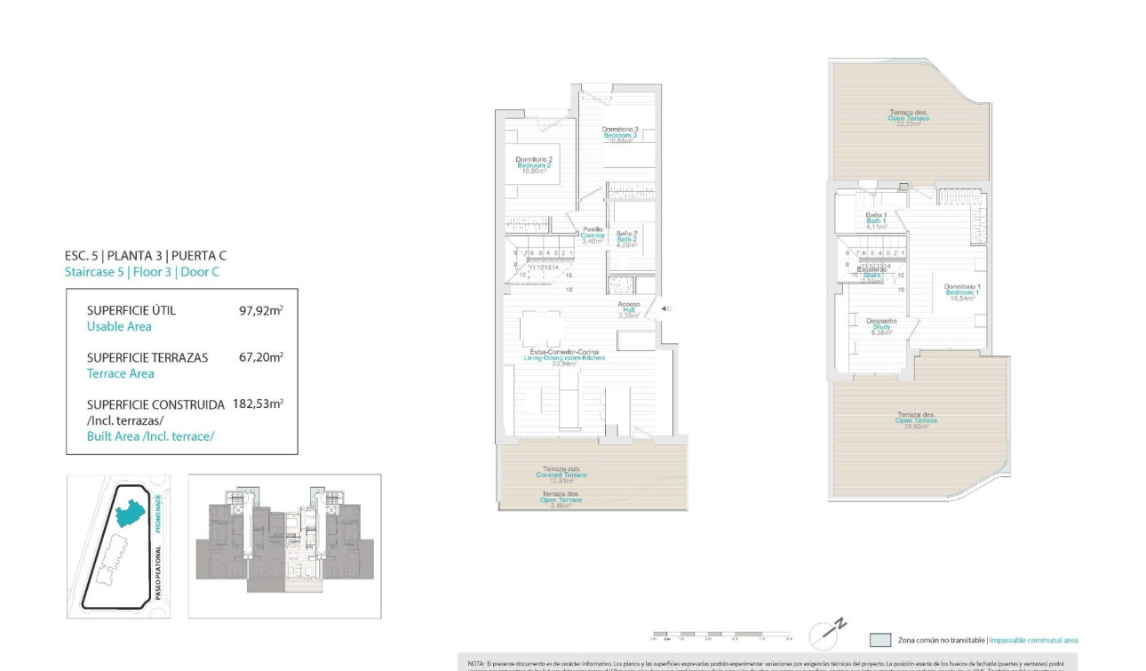
Slaapkamers Slaapkamers:

3

Bad Bad:

2

Gebouwd Gebouwd:

115m2

Nuttig Nuttig:

97m2

Zwembad Zwembad:

Ja

Afstand naar het strand Afstand naar het strand:

200 Mts.

Airconditioning: vooraf geïnstalleerd
Dubbele slaapkamers: 3
Uitzicht: Zee
Lift
In de buurt van scholen
Dichtbij Commercieel Centrum
Sportschool
Bruikbare bouwruimte: 97 Msq.
Strand: 200 meter
Terras: 66 m².
Parkeerplaats
Gemeenschappelijk zwembad
Omheind
Solarium: Ja
Aantal parkeerplaatsen: 1
Locatie: Kust, Urbanisatie

Plaats

Vraag voor informatie

Neem contact met ons op via WhatsApp of vul onderstaand formulier in.

Responsable del tratamiento: T.P.S. Homes Inmobiliaria CB, Finalidad del tratamiento: Gestión y control de los servicios ofrecidos a través de la página Web de Servicios inmobiliarios, Envío de información a traves de newsletter y otros, Legitimación: Por consentimiento, Destinatarios: No se cederan los datos, salvo para elaborar contabilidad, Derechos de las personas interesadas: Acceder, rectificar y suprimir los datos, solicitar la portabilidad de los mismos, oponerse altratamiento y solicitar la limitación de éste, Procedencia de los datos: El Propio interesado, Información Adicional: Puede consultarse la información adicional y detallada sobre protección de datos Aquí.
WhatsApp
Facebook Instagram Youtube