57.500€
160m2
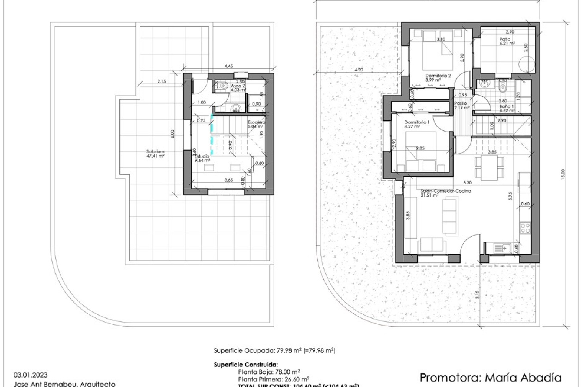
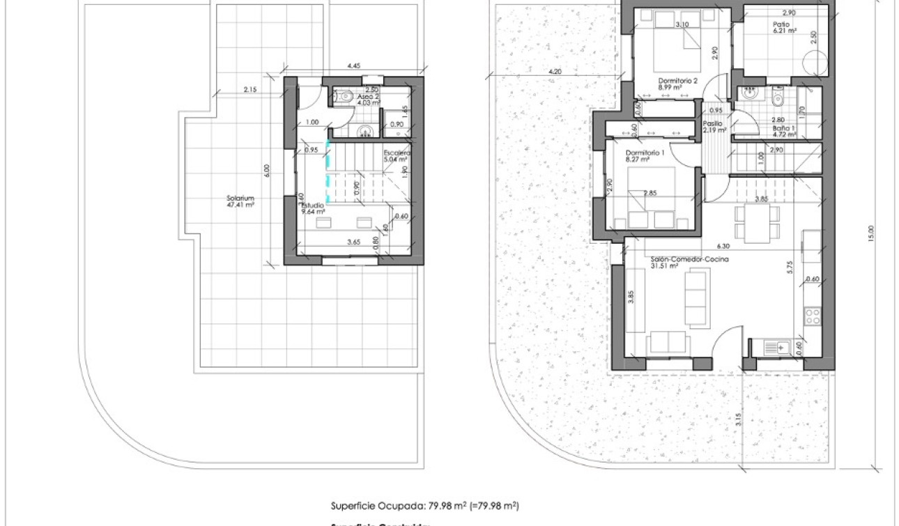
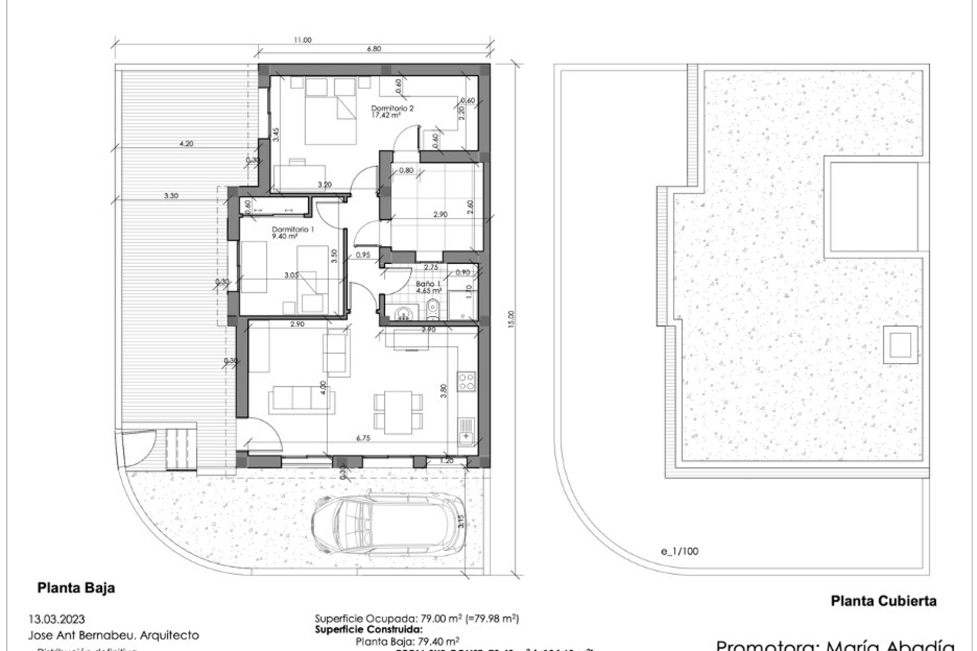
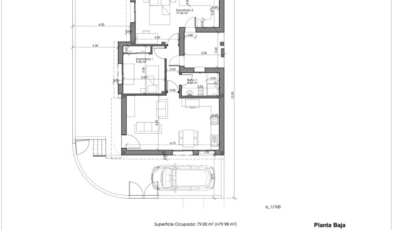
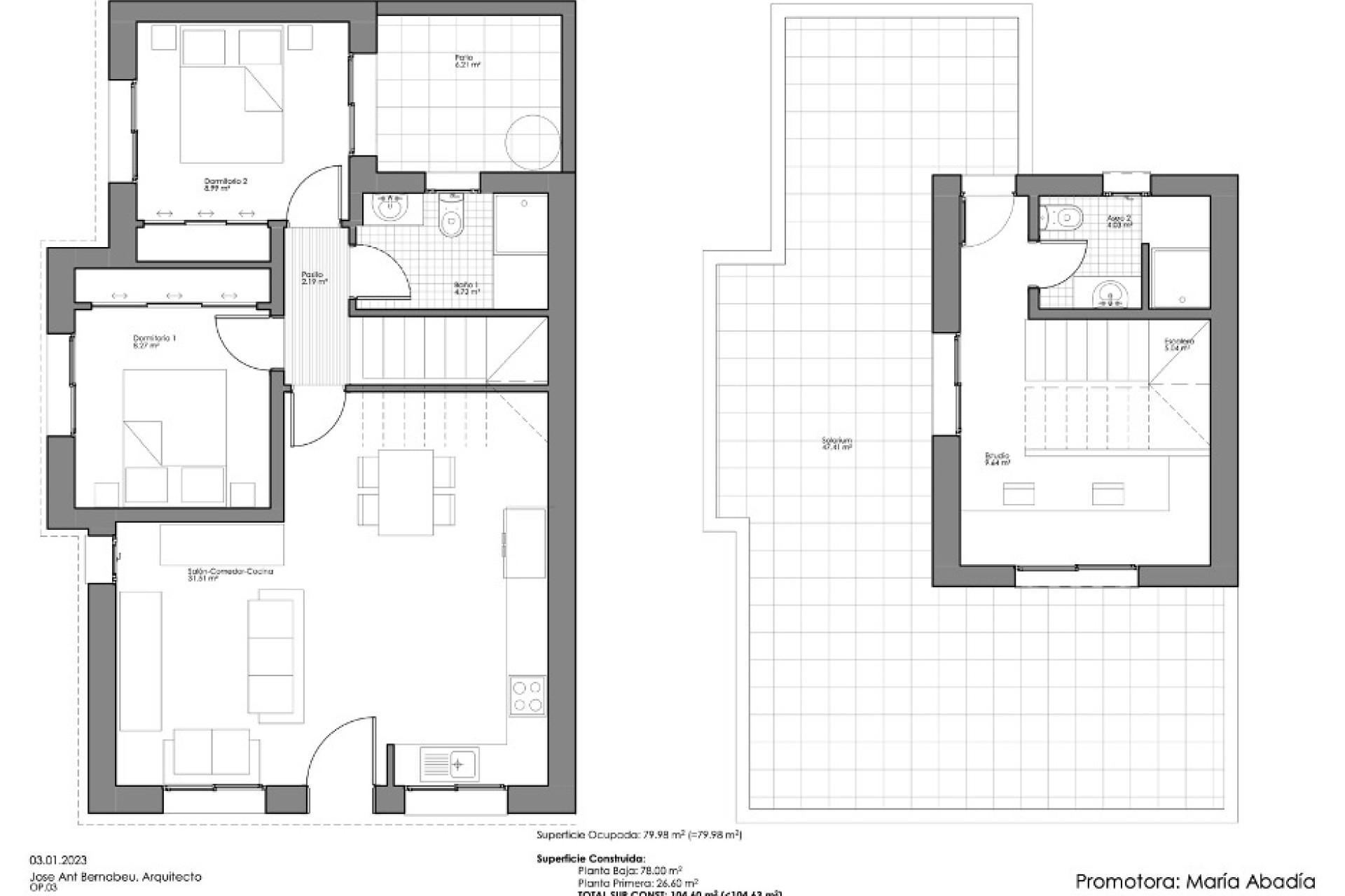
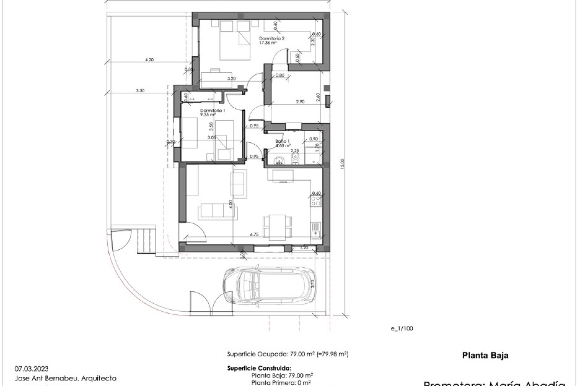
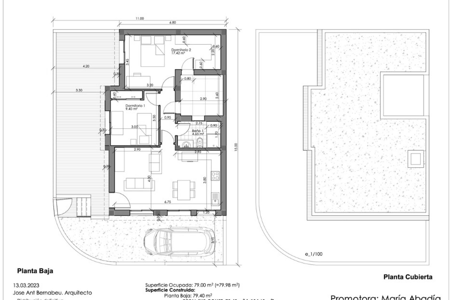
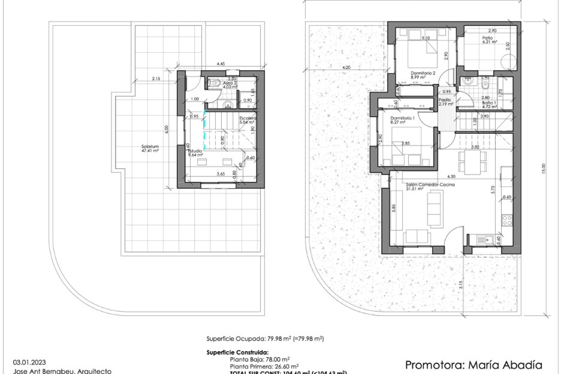
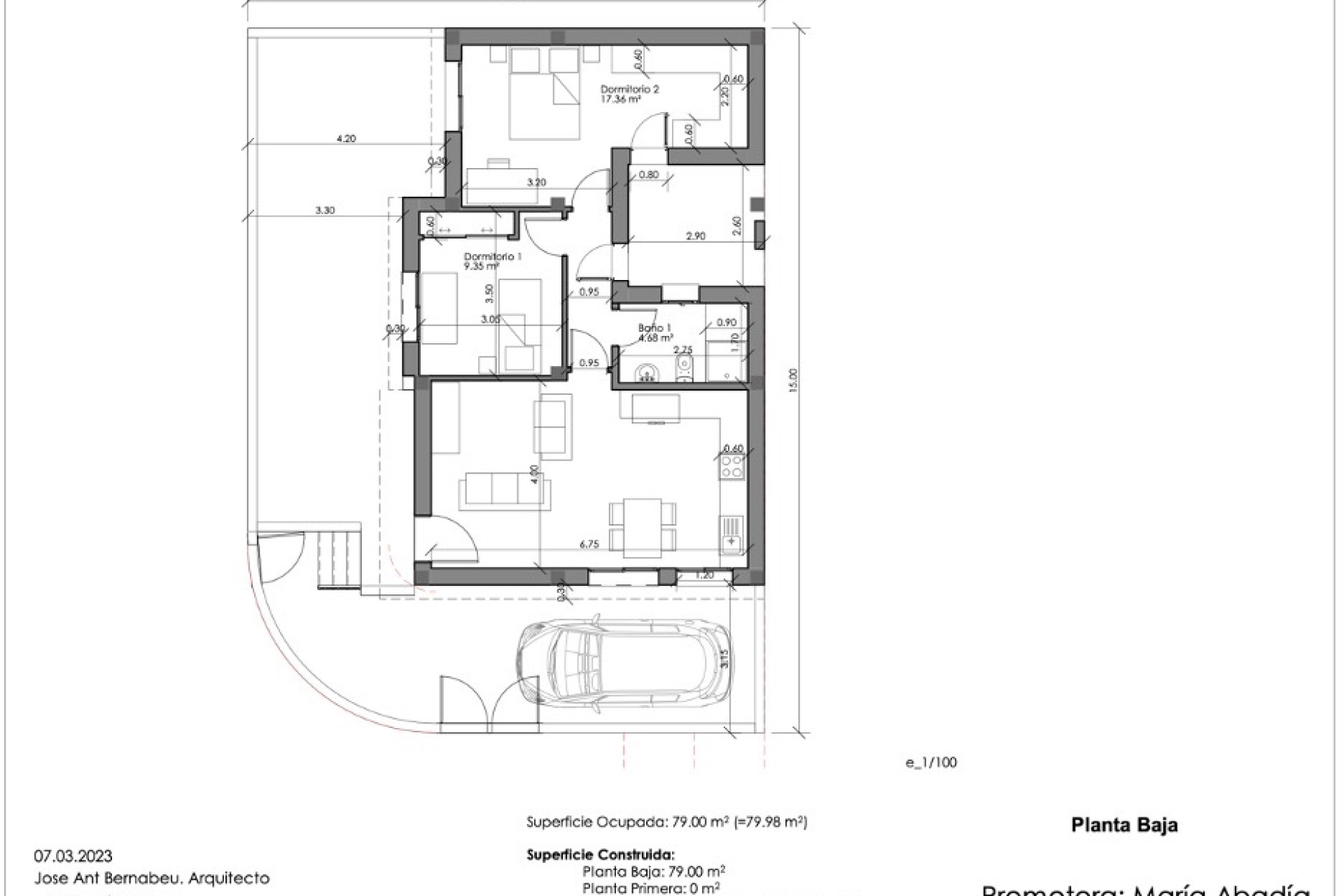
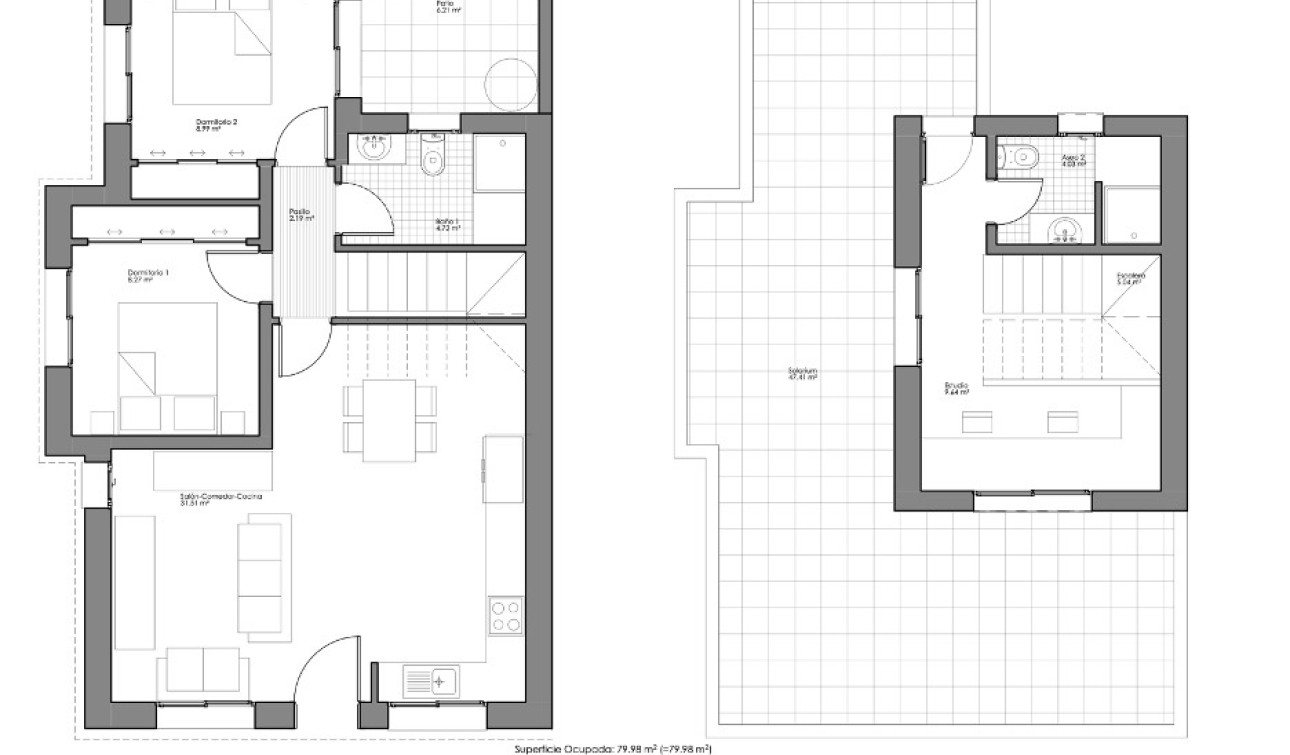
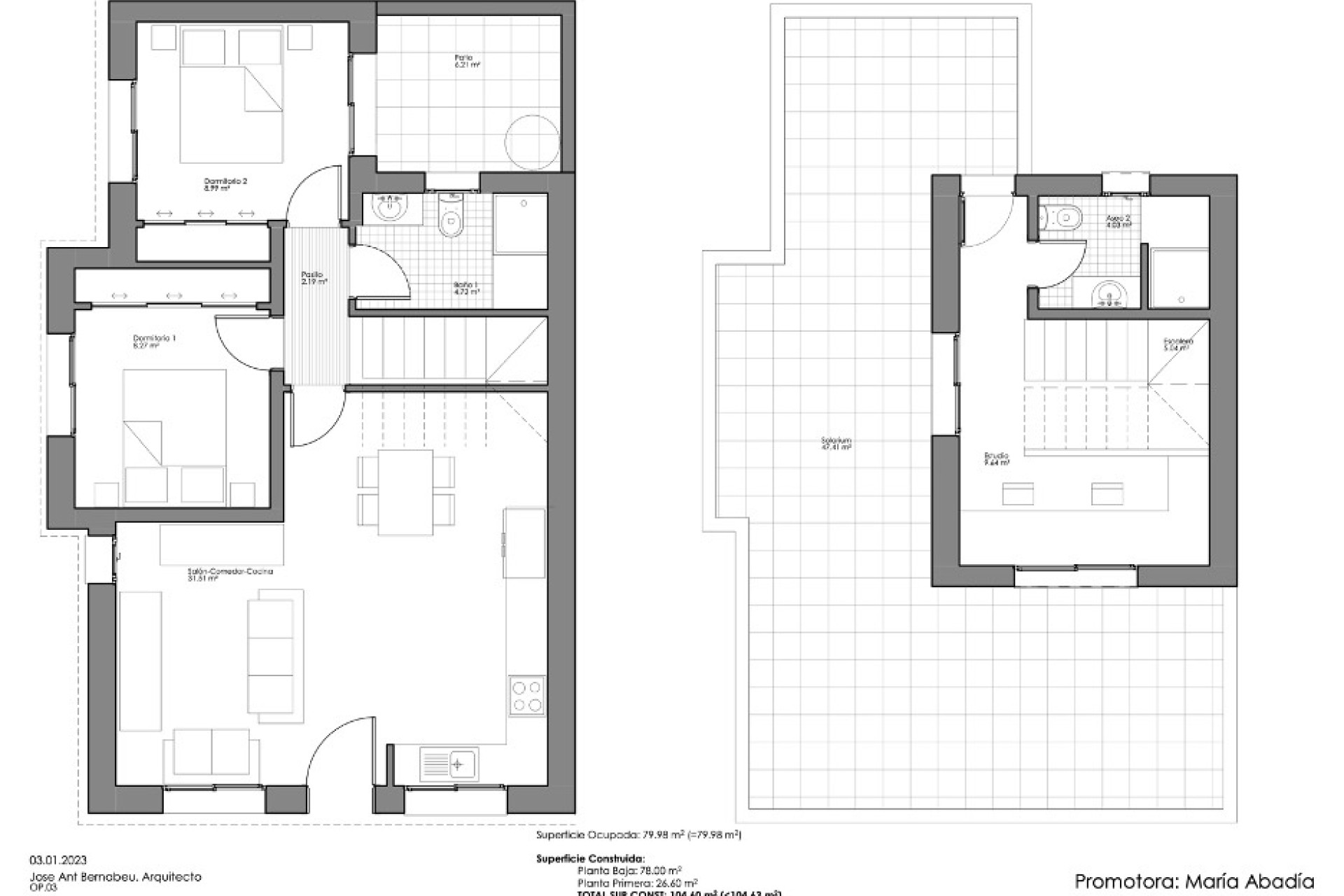
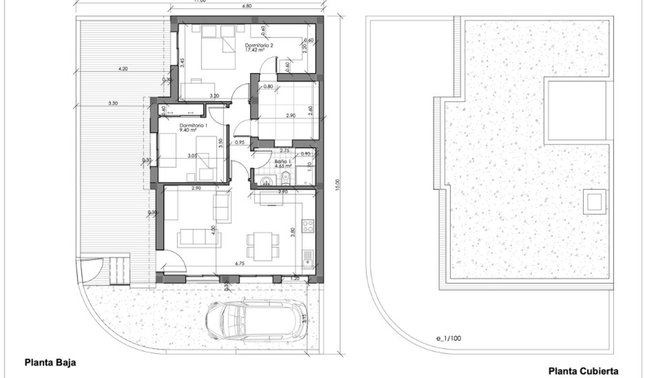
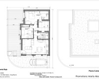
Terrain urbain avec permis de construire à Daya Nueva – 160 m² avec potentiel de développement Découvrez ce terrain urbain de 160 m² dans un emplacement privilégié dans le charmant village de Daya Nueva au cœur de la Vega Baja d'Alicante. Cette propriété entièrement développée dispose d'un permis de construire pour une villa individuelle de plain-pied . Sous réserve de l'approbation de la municipalité, il existe la possibilité de modifier le projet et de construire une maison à deux étages . Depuis cette propriété , toutes les commodités telles que les magasins, les bars, les restaurants et la place de la ville sont accessibles à pied . C'est une opportunité idéale pour construire la maison de vos rêves dans un cadre espagnol tranquille tout en étant proche de tout ce dont vous avez besoin. Daya Nueva est un village espagnol traditionnel qui devient de plus en plus populaire auprès des habitants et des touristes en raison de son atmosphère paisible, de sa communauté amicale et de ses excellentes liaisons routières. Entouré d'orangers et de citronniers, il offre un avant-goût de la vie méditerranéenne authentique tout en étant proche de la côte et des commodités de la ville. Données de localisation importantes : À seulement 13 km (environ 15 minutes) des belles plages de Guardamar del Segura À seulement 8 km du célèbre parcours de golf La Marquesa à Ciudad Quesada L'aéroport international d'Alicante est à seulement 40 km (environ 35 minutes) Accès rapide à l'AP-7 et à la N-332 pour un déplacement facile le long de la Costa Blanca Que vous recherchiez une maison permanente , une maison de vacances ou un investissement intelligent , ce terrain offre flexibilité et grand potentiel dans l'un des secrets les mieux gardés de la Costa Blanca. Veuillez nous contacter dès aujourd'hui pour plus d'informations ou pour organiser une visite de la propriété et des environs.
160m2