1.190.000€
139m2
742m2
800 Mts.
139m2
742m2
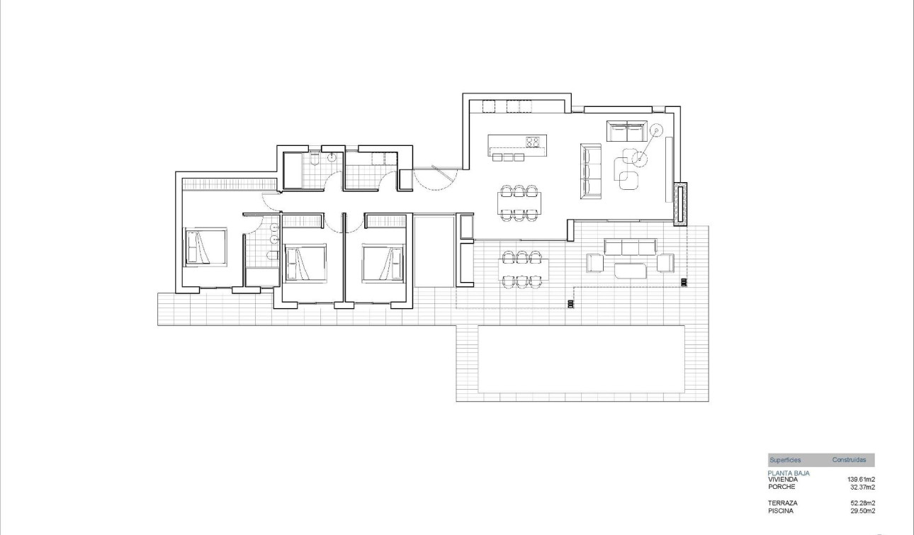
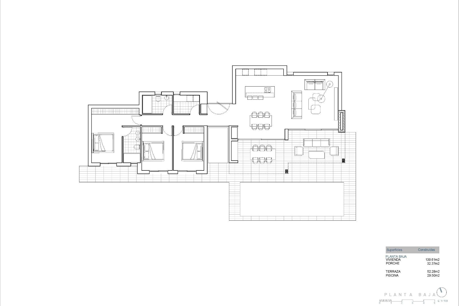
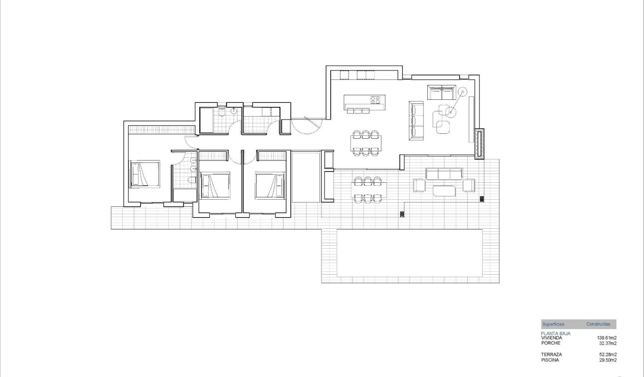
VILLA DE NOUVELLE CONSTRUCTION À CALPE Villa de nouvelle construction située dans l'une des zones résidentielles préférées de tous les résidents de Calpe, en raison de sa proximité avec le centre ville, les plages et en même temps parce que c'est une zone tranquille mais sûre, car elle est située à la périphérie du centre ville. La propriété a été prévue sur un seul étage, ce qui rend ce projet pratique et confortable. L'ensemble du terrain est clôturé et possède une haie de cyprès à l'intérieur, ce qui assure une certaine intimité et un environnement agréable. De l'entrée principale de la maison nous accédons à un hall, à partir duquel à gauche nous accédons à la zone de jour, composé d'un salon avec salle à manger et cuisine ouverte avec îlot. Depuis le salon, nous pouvons accéder à l'extérieur, où nous avons un porche couvert avec barbecue et une grande terrasse avec piscine de 40m2. Sur le côté droit de la maison se trouve la zone de couchage, avec 4 chambres : la suite parentale avec dressing et salle de bain, une autre chambre avec salle de bain attenante et deux autres chambres partageant une salle de bain. Il y a également une buanderie. À l'extérieur, il y a une aire de stationnement avec une pergola en forme de voile pour deux voitures. Calpe, une des villes de La Marina Alta, se trouve sur la côte nord de la province d'Alicante, entourée des villes d'Altea, Benidorm, Teulada-Moraira, Benissa. Calpe offre un merveilleux mélange de vieille culture valencienne et d'installations touristiques modernes. C'est un excellent point de départ pour explorer la région ou profiter des nombreuses plages locales. Calpe possède à elle seule trois des plus belles plages de sable de la côte. Calpe possède également deux clubs de voile : Real Club Náutico de Calpe et Club Náutico de Puerto Blanco. Le village de pêcheurs de Calpe s'est transformé en un pôle d'attraction touristique. Il bénéficie d'un emplacement idéal, facilement accessible par l'autoroute A7 et la N332 qui relie Valence à Alicante ; il se trouve à environ une heure de route de l'aéroport d'Alicante et à une heure et demie de celui de Valence.
3
2
139m2
120m2
742m2
Oui
800 Mts.
Cette information donnée ici est sujette à des erreurs et ne fait partie d'aucun contrat. L'offre peut être modifiée ou retirée sans préavis. Les prix n'incluent pas les coûts d'achat
Réf: RG-19362
Réf: SP-46267
Réf: RG-32189
Réf: RS-22668
Réf: MR-33324
Réf: RG-72785
Réf: ES-59712
Téléphone
Mobile
Numéro espagnol
© 2026 TPS Homes. Mentions légales · Intimité · Cookies · Plan du site
Conception & CRM: Mediaelx
Tout d’abord, merci de nous contacter.
Réf: RG-19362
Réf: SP-46267
Réf: RG-32189
Réf: RS-22668
Réf: MR-33324
Réf: RG-72785
Réf: ES-59712
Tout d’abord, merci de nous contacter.
Nous avons reçu une demande de rapport si vous abaissez le prix de la propriété avec la référence: RG-91534
En attendant, jetez un œil à cette sélection de propriétés similaires qui pourraient vous intéresser:
Réf: RG-19362
Réf: SP-46267
Réf: RG-32189
Réf: RS-22668
Réf: MR-33324
Réf: RG-72785
Réf: ES-59712