2.175.000€
269m2
1.046m2
800 Mts.
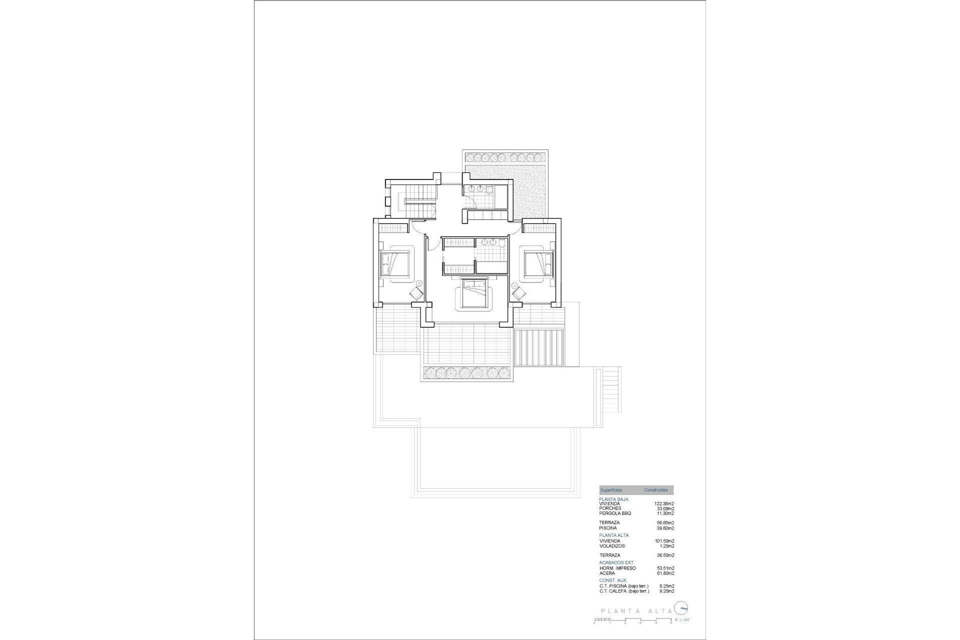
Villa avec vue sur la mer et charme ibicenco à La Fustera, Benissa Cette superbe villa récemment construite allie l'élégance de l'architecture contemporaine à la chaleur et au caractère du design ibicenco. Située dans le quartier très prisé de La Fustera (Benissa Costa), elle bénéficie d'une vue panoramique sur la mer et se trouve à quelques minutes de la plage, des supermarchés, des restaurants et des autres services essentiels. Située sur un terrain de plus de 1 000 m², la propriété est répartie sur deux niveaux et offre un total de 4 chambres spacieuses et 3 salles de bains. Le rez-de-chaussée présente un plan ouvert avec un grand salon, une salle à manger et une cuisine entièrement équipée avec îlot et bar. Des portes coulissantes du sol au plafond relient l'intérieur à une grande terrasse orientée au sud, créant une circulation parfaite entre l'intérieur et l'extérieur. Ce niveau comprend également une chambre et une salle de bains. À l'extérieur, la villa dispose de plusieurs espaces de détente et de repas, d'un espace barbecue couvert d'une pergola et d'une piscine accueillante entourée d'un jardin luxuriant et de chaises longues. À l'étage supérieur, trois chambres supplémentaires (dont la suite parentale avec salle de bains privative et terrasse privée) ainsi qu'une deuxième terrasse offrant de belles vues. La maison est entièrement équipée pour un confort optimal tout au long de l'année et comprend le chauffage au sol, la climatisation centralisée et des finitions de haute qualité. Elle dispose également d'un local technique pour le système de chauffage et d'un local séparé pour l'équipement de la piscine, tous deux situés en sous-sol afin d'optimiser l'espace et la fonctionnalité. Suis ton rêve et achète ta villa à La Fustera, Benissa Costa, et profite d'un style de vie méditerranéen ultime avec une vue imprenable sur la mer et un confort inégalé.
4
3
269m2
180m2
1.046m2
Oui
800 Mts.