259.000€
81m2
53m2
3500 Mts.
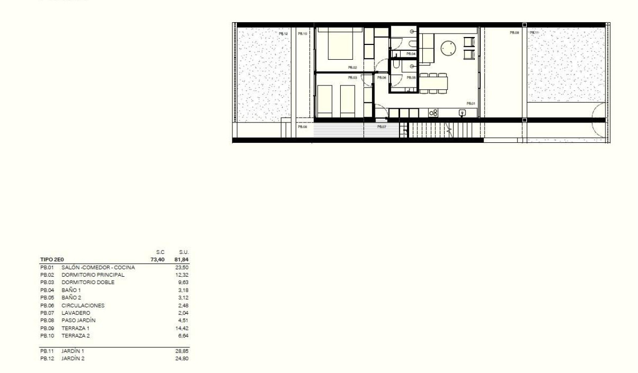
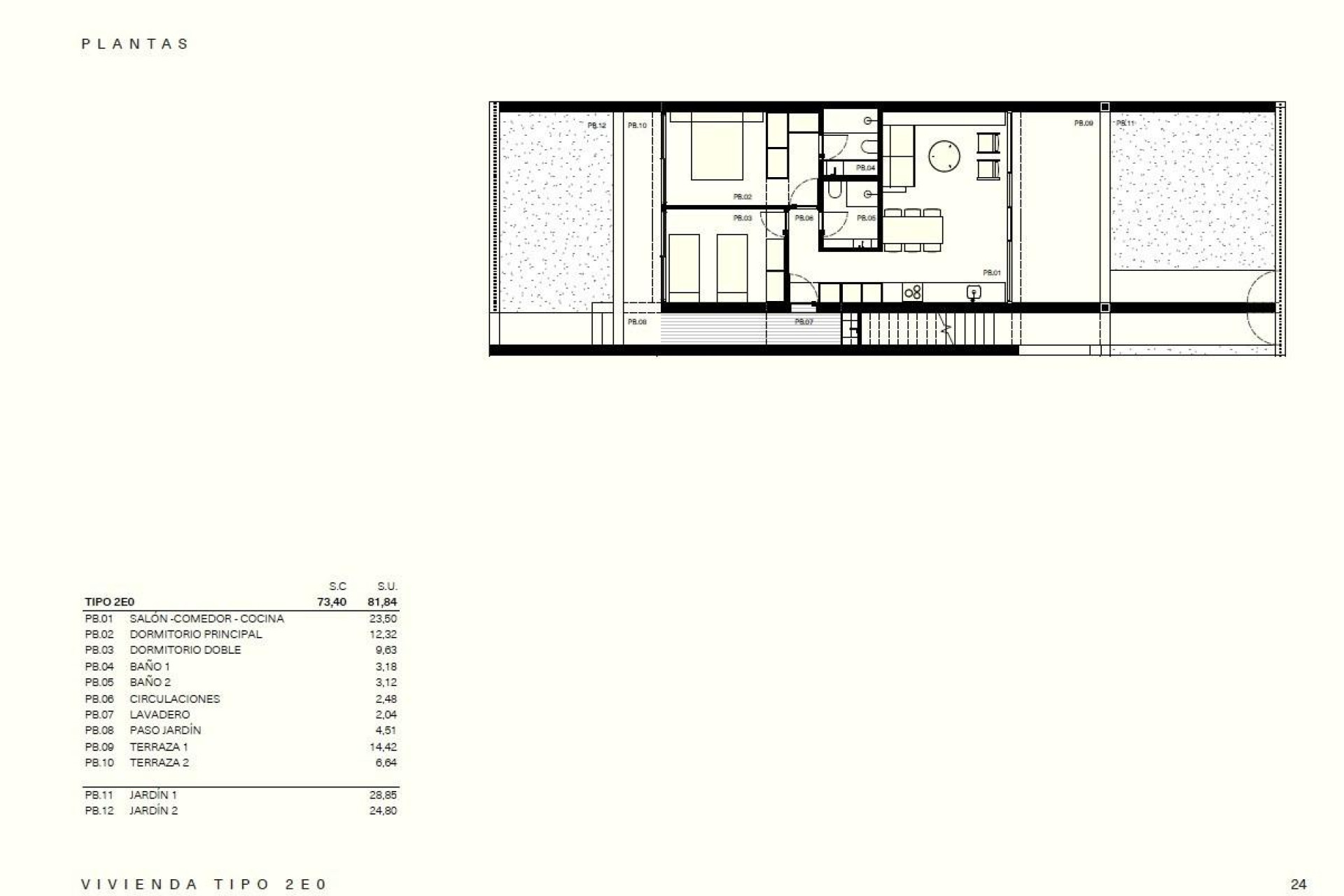
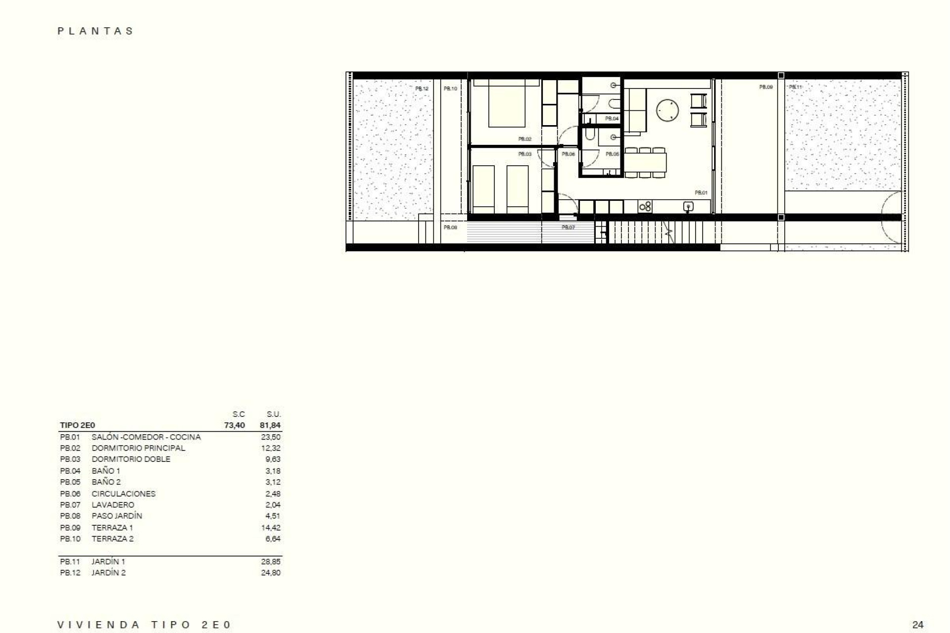
Appartements neufs à Los Balcones, Torrevieja Maisons modernes dans un quartier résidentiel privilégié Découvrez ce nouveau complexe résidentiel attrayant situé à Los Balcones, l'un des quartiers les plus populaires et les mieux établis de la périphérie de Torrevieja. Situé dans un environnement paisible et bénéficiant d'un excellent accès à tous les services essentiels, ce complexe se trouve à seulement 4 km des plages de sable de la Costa Blanca. Los Balcones est connu pour son atmosphère détendue, ses larges rues, ses espaces verts et sa proximité avec les hôpitaux, les supermarchés, les restaurants et les centres commerciaux, ce qui en fait un endroit idéal pour y vivre toute l'année ou pour y passer ses vacances. Appartements contemporains avec espaces extérieurs privés Le complexe se compose de 52 appartements modernes construits sur une surface totale de 6700 m2. Chaque propriété comprend une place de parking privée et un débarras au sous-sol. Les logements offrent 2 ou 3 chambres et 2 salles de bains, dont une en suite. Les acheteurs peuvent choisir entre des appartements au rez-de-chaussée avec un jardin privé ou des logements aux étages supérieurs avec une terrasse spacieuse et un solarium privé. Ces agencements sont conçus pour maximiser la lumière naturelle et offrir des espaces de vie intérieurs et extérieurs confortables afin de profiter du climat méditerranéen tout au long de l'année. Espaces communs conçus pour la détente Le projet est organisé en quatre blocs entourant un grand espace commun central. Ce cœur vert du complexe comprend une piscine avec un espace réservé aux enfants et de magnifiques jardins paysagers. Ces espaces communs sont parfaits pour se détendre, socialiser et passer du temps en famille dans un environnement sûr et convivial. Caractéristiques de qualité et conception économe en énergie Chaque appartement est construit selon les normes modernes et comprend la pré-installation d'une climatisation canalisée, un système d'eau chaude aérothermique pour une meilleure efficacité énergétique, un éclairage extérieur et des menuiseries extérieures à double vitrage. Les cuisines sont entièrement équipées, offrant un espace fonctionnel et élégant pour la vie quotidienne. Ces caractéristiques garantissent un haut niveau de confort, un entretien réduit et une consommation d'énergie moindre, rendant les maisons à la fois pratiques et durables. Excellent emplacement à proximité des plages et des terrains de golf Los Balcones bénéficie d'un emplacement stratégique à proximité de nombreux points d'intérêt. Les plages de Torrevieja sont à environ 4 km. Plusieurs terrains de golf renommés, tels que Villamartin Golf, Las Ramblas Golf et Campoamor Golf, se trouvent à 10-15 km. L'hôpital universitaire de Torrevieja est à moins de 2 km, ce qui ajoute à la commodité et à la tranquillité d'esprit. Le centre-ville de Torrevieja se trouve à environ 5 km et est relié par bus à Los Balcones, où vous trouverez un large éventail de magasins, de restaurants, de lieux culturels et une marina animée. L'aéroport international d'Alicante est situé à environ 42 km, offrant des liaisons internationales faciles. Le port de Torrevieja se trouve à environ 6 km. Idéal pour y vivre ou investir Avec son design moderne, ses excellentes parties communes et son emplacement privilégié à proximité des plages, du golf et des services, ce nouveau complexe résidentiel à Los Balcones Torrevieja est parfait comme résidence permanente, maison de vacances ou opportunité d'investissement. Contactez-nous dès aujourd'hui pour obtenir plus d'informations ou pour organiser une visite de ces appartements neufs à Los Balcones, Torrevieja.
2
2
81m2
73m2
53m2
Oui
3500 Mts.