1.890.000€
351m2
1.021m2
2000 Mts.
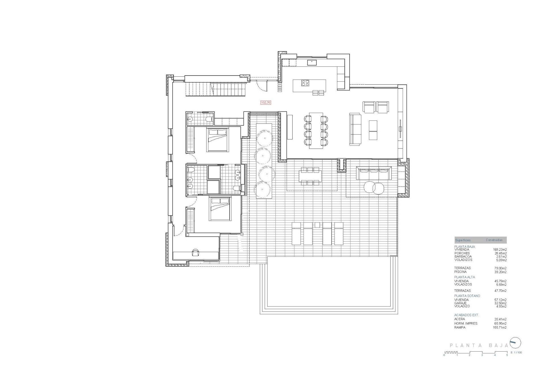
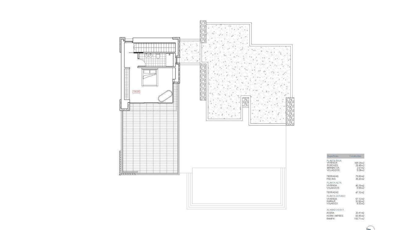
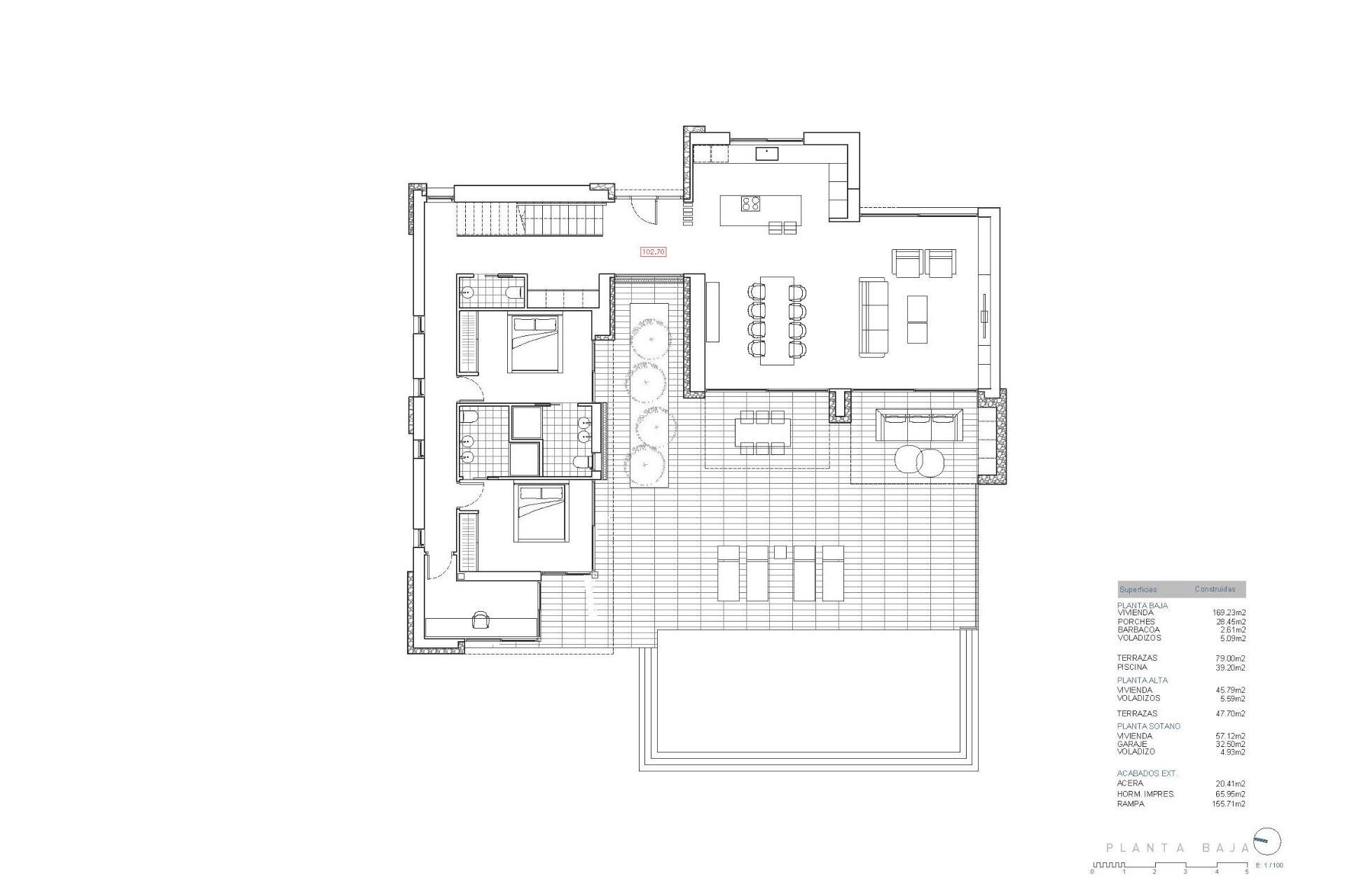
Villa neuve de luxe avec vue sur la mer à San Jaime, Benissa Résidence exclusive dans un emplacement privilégié sur la Costa Blanca Située dans le prestigieux quartier de San Jaime à Benissa, cette villa neuve exceptionnelle offre une vue sur la mer, de l'intimité et un design méditerranéen contemporain à seulement 2 km de la plage. Située dans une impasse tranquille, la propriété garantit la tranquillité tout en restant proche des services essentiels et des installations de loisirs du nord de la Costa Blanca. San Jaime est l'un des quartiers résidentiels les plus prisés de Benissa Costa, connu pour ses villas élégantes, son cadre verdoyant et sa proximité avec les terrains de golf, les plages et les charmantes villes côtières. La villa est située sur un terrain généreux de 1021 m2 avec une surface totale construite de 351 m2. Elle est actuellement en cours de construction et la structure est déjà achevée. Conçue avec soin sur trois niveaux Cette villa moderne est répartie sur trois étages soigneusement planifiés, alliant fonctionnalité et esthétique raffinée. Le niveau d'entrée intègre un garage privé, une buanderie et un local technique, garantissant que les espaces pratiques sont discrètement intégrés dans la conception globale. Au rez-de-chaussée, le salon et la salle à manger ouverts communiquent directement avec une cuisine entièrement équipée, créant une atmosphère lumineuse et accueillante, idéale pour la vie quotidienne et les réceptions. Ce niveau comprend également deux chambres spacieuses, chacune avec sa propre salle de bains. La terrasse extérieure et la piscine privée prolongent l'espace de vie, offrant un cadre idéal pour se détendre, dîner et profiter du climat méditerranéen avec une vue magnifique sur la mer. L'étage supérieur est dédié à la suite parentale, avec salle de bains attenante et accès direct à une grande terrasse ouverte où vous pourrez profiter d'une vue panoramique et de couchers de soleil paisibles. Spécifications haut de gamme et confort moderne La villa est livrée avec des finitions de haute qualité et des systèmes avancés pour assurer un confort et une efficacité maximaux, notamment Cuisine entièrement équipée avec appareils électroménagers Salles de bains design avec mobilier Stores électriques Interphone vidéo et système d'alarme Système aérothermique pour l'eau chaude et le chauffage au sol Climatisation centrale entièrement installée Emplacement privilégié à proximité du golf, des plages et des services La propriété est située à côté du Club de Golf Ifach et à proximité du supermarché Pepe La Sal, très apprécié. Le littoral et les criques de Benissa Costa se trouvent à seulement 2 km. Distances par rapport aux principaux points d'intérêt Plage 2 km Moraira 5 km Calpe 8 km Club de Golf Ifach 0,5 km Aéroport d'Alicante 80 km Aéroport de Valence 110 km Assurez-vous la villa de vos rêves à Benissa Costa Cette villa exceptionnelle allie une architecture moderne, une vue sur la mer et un emplacement privilégié à San Jaime. Contactez-nous dès aujourd'hui pour obtenir plus d'informations ou pour organiser une visite privée de cette nouvelle propriété exclusive à Benissa.
3
3
351m2
214m2
1.021m2
Oui
2000 Mts.