152.107€
50m2
4000 Mts.
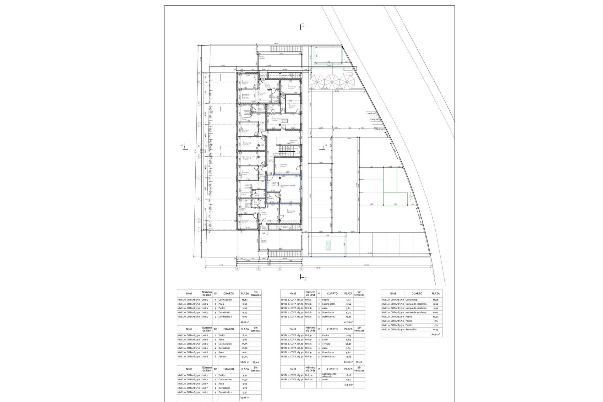
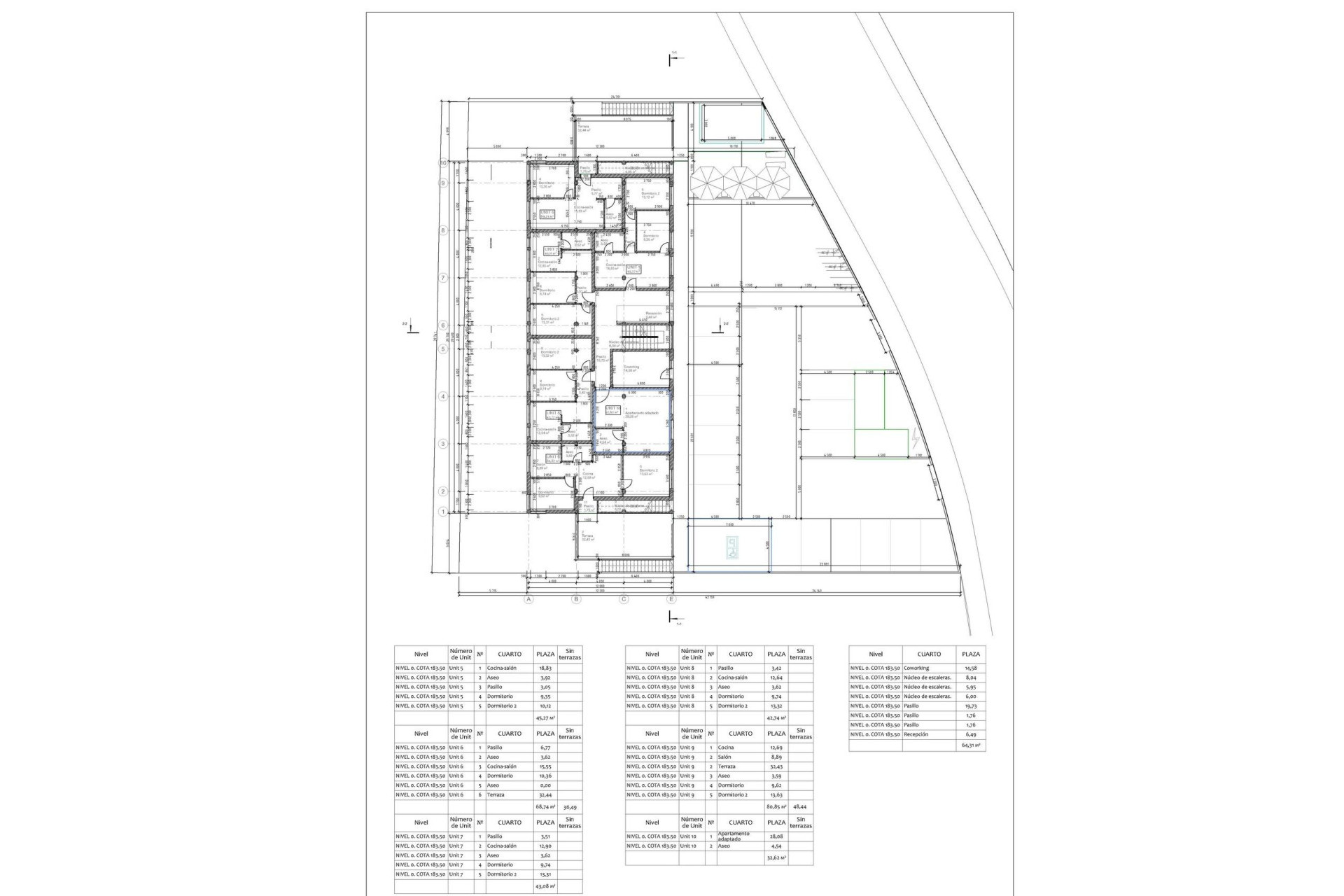
Appartements neufs avec licence touristique à Finestrat : opportunité d'investissement près du golf et de Benidorm Appartements d'investissement exclusifs à Finestrat-Costa Blanca Découvrez ce superbe programme immobilier neuf comprenant 18 appartements dotés d'une licence touristique complète, situé dans l'un des quartiers les plus prisés de la Costa Blanca. Situé à proximité du golf Puig Campana à Finestrat, ce complexe résidentiel en hauteur bénéficie d'une vue imprenable sur la mer Méditerranée et les montagnes environnantes. À seulement 4 km des plages de Benidorm et à proximité du charmant village de Finestrat, cet emplacement offre la combinaison parfaite entre tranquillité, accessibilité et forte demande locative. Finestrat est un quartier très prisé, réputé pour sa beauté naturelle, ses excellentes infrastructures et sa proximité avec les principales destinations de loisirs. Le village a su préserver son charme espagnol traditionnel, tandis que la côte voisine offre une vie nocturne animée, des plages, des boutiques et des divertissements. Appartements modernes avec vue sur la mer et la montagne Le programme immobilier se compose de 12 appartements avec de magnifiques vues sur la mer et de 6 appartements avec des vues dégagées sur la montagne. Les acheteurs peuvent choisir entre des logements au rez-de-chaussée et au dernier étage dans un immeuble de faible hauteur sans ascenseur. Différents agencements sont disponibles, notamment des studios et des appartements de 1 ou 2 chambres, tous dotés d’une salle de bains. Certains appartements disposent de terrasses privées, idéales pour profiter du climat méditerranéen et du panorama environnant, tandis que d’autres offrent des agencements intérieurs fonctionnels conçus pour le confort et la praticité. Finitions de haute qualité et confort de vie Chaque appartement est livré avec des équipements haut de gamme et des finitions modernes, notamment la climatisation multisplit, un système d'eau chaude aérothermique, une cuisine équipée et des salles de bains entièrement équipées avec meuble-lavabo, miroir, chauffage au sol et paroi de douche. Pour plus de commodité, le promoteur propose également un pack de mobilier en option à prix fixe, rendant le bien prêt à l'emploi ou à la location immédiate. Équipements de style resort et gestion locative Les résidents et leurs invités peuvent profiter d'excellentes installations communes, notamment une piscine, un solarium commun et une aire de jeux pour enfants. Des places de parking extérieures sont également disponibles en option moyennant un supplément. Il s'agit d'un produit d'investissement touristique géré par des professionnels. L'ensemble du complexe sera exploité par une seule société de gestion, générant des revenus locatifs pour les propriétaires tout en leur permettant une utilisation personnelle jusqu'à 4 mois par an. En tant que bien d'investissement touristique agréé, la TVA est déductible, ce qui offre un avantage financier significatif et réduit les coûts d'acquisition. Emplacement exceptionnel et distances clés Golf de Puig Campana 0,3 km Centre commercial La Marina 2 km Plages de Benidorm 4 km Village de Finestrat 3 km Port de Benidorm 5 km Aéroport d'Alicante 55 km École 0,1 km Assurez-vous un investissement à haut rendement sur la Costa Blanca Que vous recherchiez un investissement rentable, une résidence secondaire ou les deux, ces appartements touristiques à Finestrat offrent un rapport qualité-prix et un emplacement exceptionnels. Contactez-nous dès aujourd'hui pour obtenir plus d'informations ou pour organiser une visite et acquérir votre bien d'investissement sur la Costa Blanca.
2
1
50m2
45m2
Oui
4000 Mts.