4 Bed 3 Bad Nieuwbouw Woningen Vrijstaande villa in Aspe - Costa Blanca South

Ref: RG-88475

637.000€

Ref: RG-88475
Gebouwd Gebouwd:

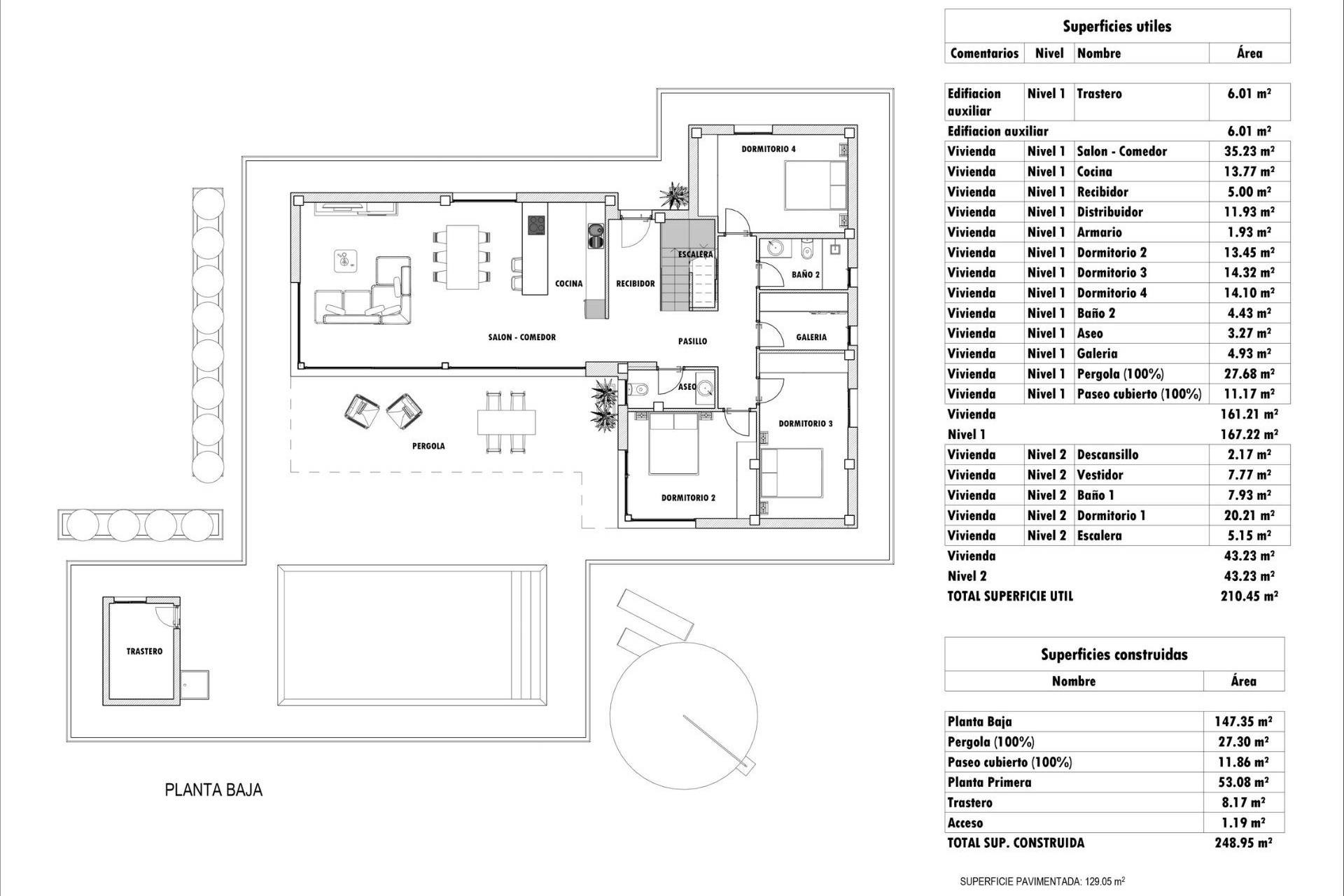
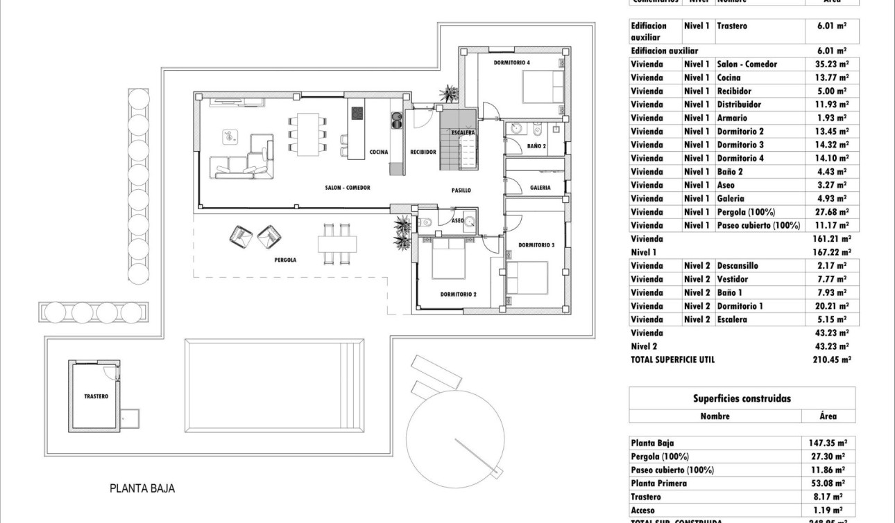
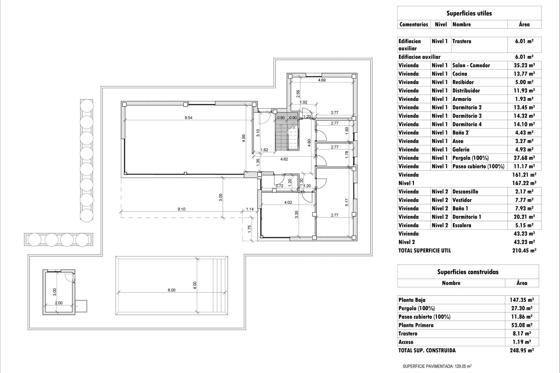
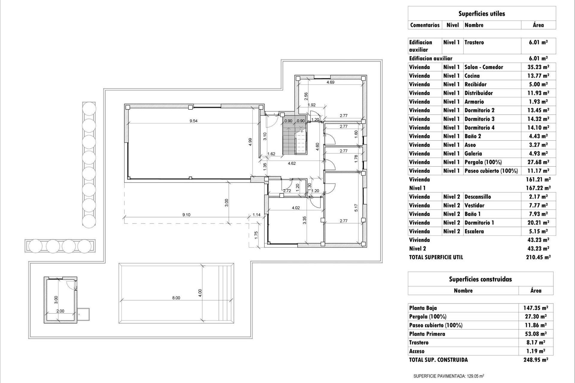
248m2

Plot Plot:

13.172m2

Afstand naar het strand Afstand naar het strand:

40000 Mts.

4 Bed 3 Bad Nieuwbouw Woningen Vrijstaande villa in Aspe - Costa Blanca South
Gebouwd:

248m2

Plot:

13.172m2

Ref: RG-88475

637.000€

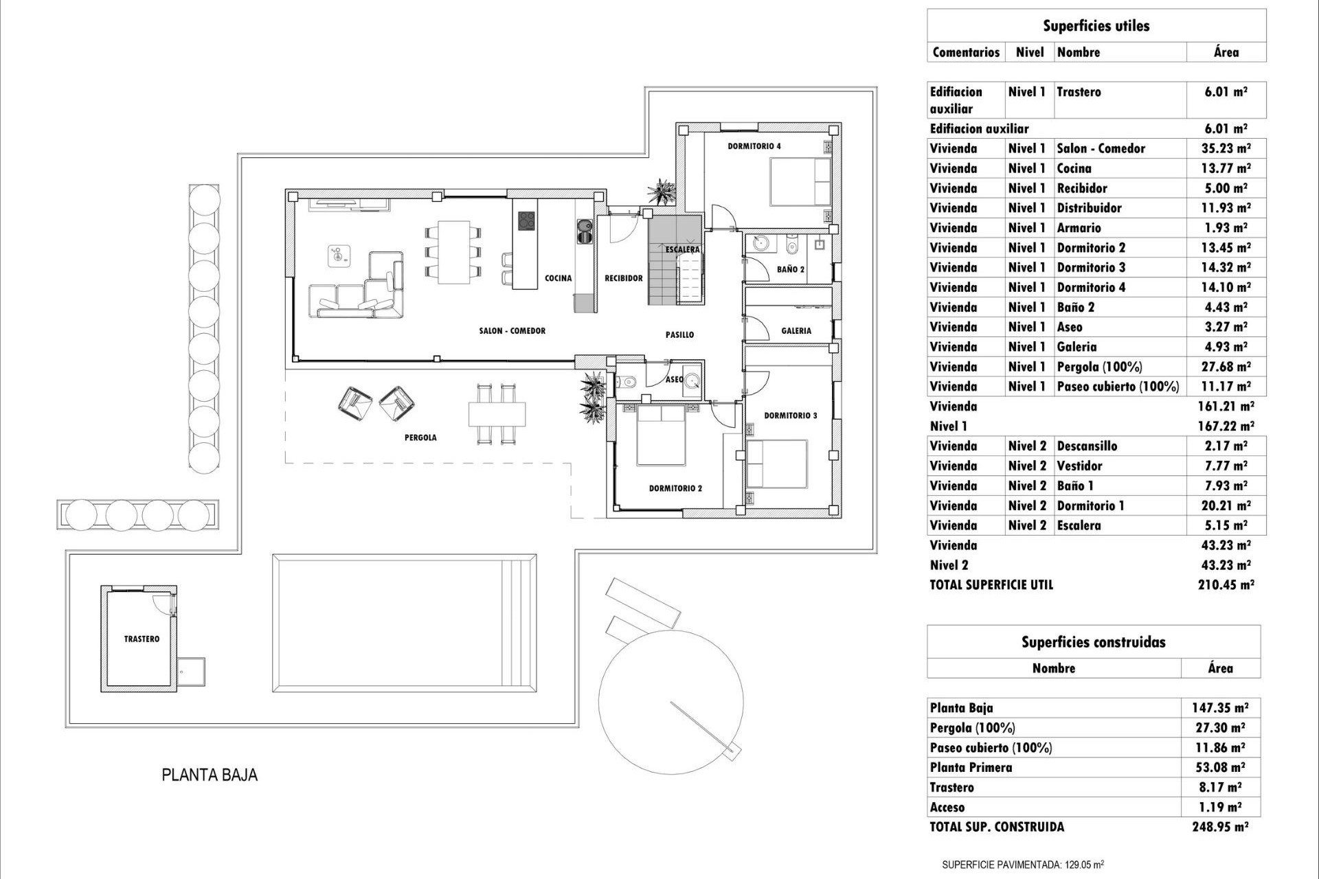
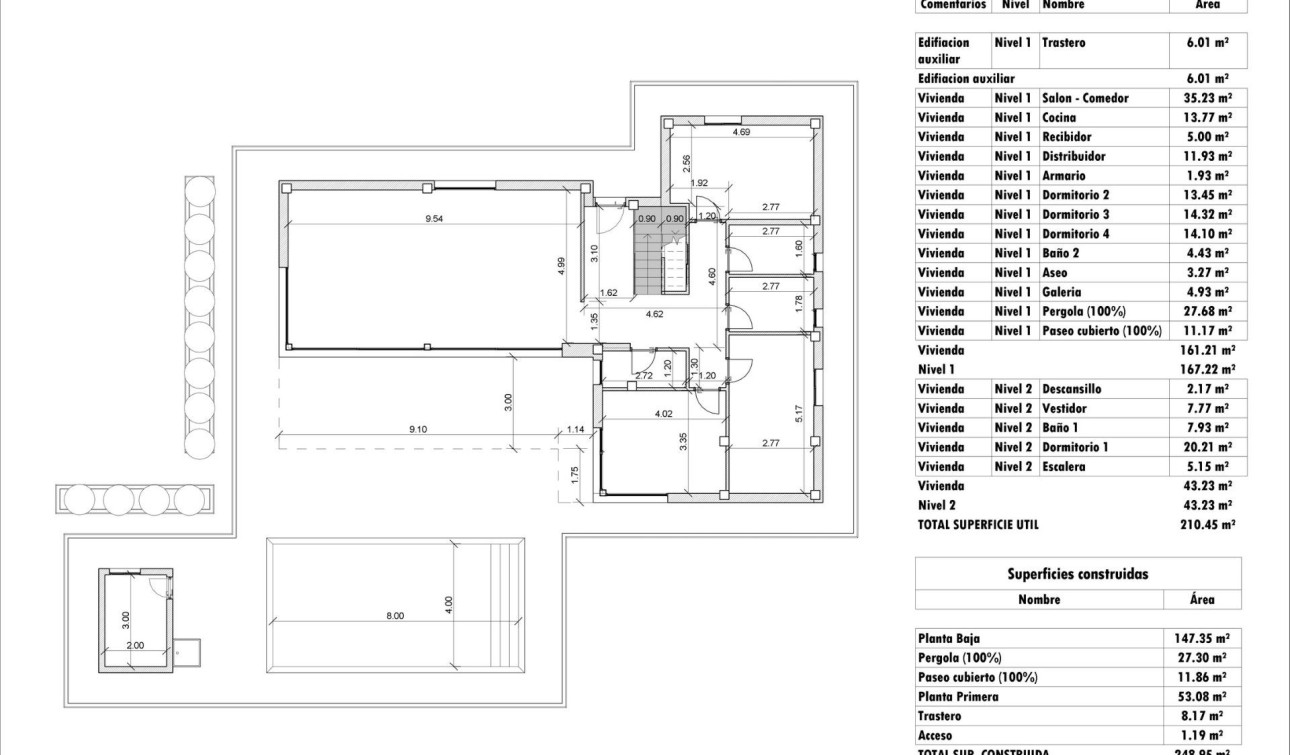
  • 248m2
  • 13.172m2
  • 4
  • 3
  •  

Beschrijving

Kenmerken

Slaapkamers Slaapkamers:

4

Bad Bad:

3

Gebouwd Gebouwd:

248m2

Nuttig Nuttig:

210m2

Plot Plot:

13.172m2

Zwembad Zwembad:

Ja

Afstand naar het strand Afstand naar het strand:

40000 Mts.

Private pool
Tuin
Omheind
Aantal parkeerplaatsen: 1
Airconditioning: vooraf geïnstalleerd
Dubbele slaapkamers: 4
In de buurt van scholen
Terras: 38 m².
Parkeerplaats
Strand: 25.000 meter
Bruikbare bouwruimte: 210 Msq.
Locatie: Berg
Opslag / Trastero

Plaats

Vraag voor informatie

Neem contact met ons op via WhatsApp of vul onderstaand formulier in.

Responsable del tratamiento: T.P.S. Homes Inmobiliaria CB, Finalidad del tratamiento: Gestión y control de los servicios ofrecidos a través de la página Web de Servicios inmobiliarios, Envío de información a traves de newsletter y otros, Legitimación: Por consentimiento, Destinatarios: No se cederan los datos, salvo para elaborar contabilidad, Derechos de las personas interesadas: Acceder, rectificar y suprimir los datos, solicitar la portabilidad de los mismos, oponerse altratamiento y solicitar la limitación de éste, Procedencia de los datos: El Propio interesado, Información Adicional: Puede consultarse la información adicional y detallada sobre protección de datos Aquí.
WhatsApp
Facebook Instagram Youtube