4 Lit 3 Bain Nouvelle construction Villa Individuelle dans Aspe - Costa Blanca South

Réf: RG-88475

637.000€

Réf: RG-88475
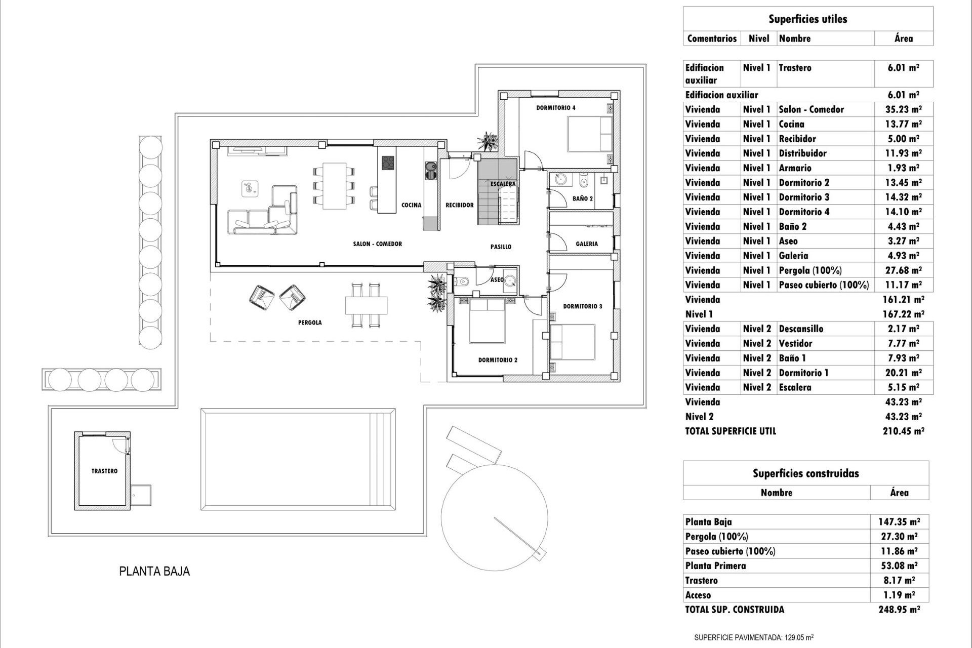
Construit Construit:

248m2

Intrigue Intrigue:

13.172m2

Distance à la plage Distance à la plage:

40000 Mts.

4 Lit 3 Bain Nouvelle construction Villa Individuelle dans Aspe - Costa Blanca South
Construit:

248m2

Intrigue:

13.172m2

  • 248m2
  • 13.172m2
  • 4
  • 3
  •  

La description

Les caractéristiques

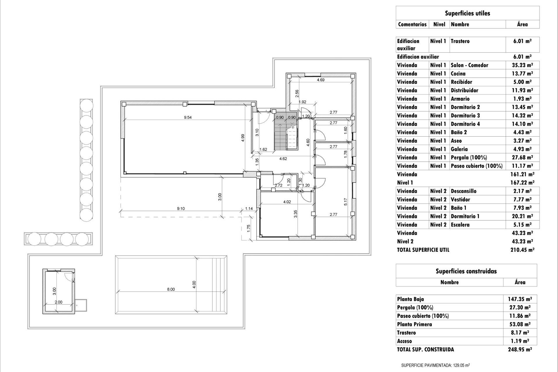
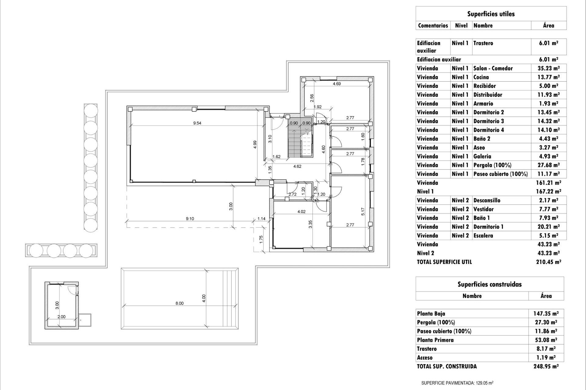
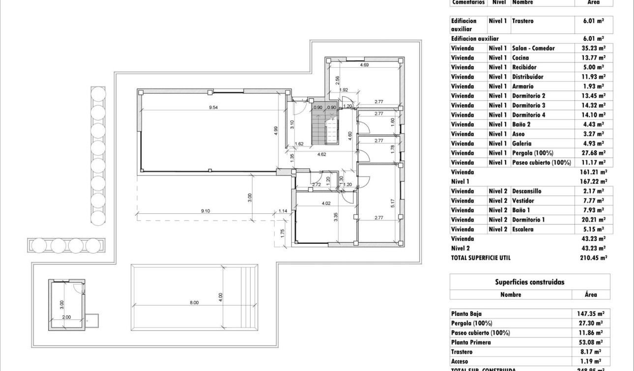
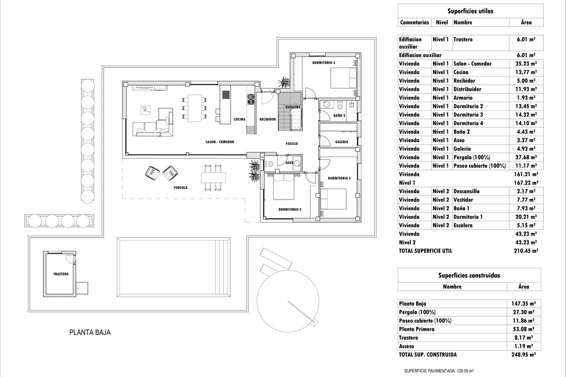
Chambres Chambres:

4

Bain Bain:

3

Construit Construit:

248m2

Utile Utile:

210m2

Intrigue Intrigue:

13.172m2

Piscine Piscine:

Oui

Distance à la plage Distance à la plage:

40000 Mts.

Jardin
Fermé
Nombre de places de stationnement : 1
Climatisation : Pré-installée
Chambres doubles : 4
Près des écoles
Terrasse : 38 m².
Place de parking
Plage : 25 000 mètres
Espace de construction utilisable : 210 m².
Localisation : Montagne
Stockage / Trastero
Private pool

Emplacement

Demander des informations

Contactez-nous via WhatsApp ou en remplissant le formulaire ci-dessous.

Responsable del tratamiento: T.P.S. Homes Inmobiliaria CB, Finalidad del tratamiento: Gestión y control de los servicios ofrecidos a través de la página Web de Servicios inmobiliarios, Envío de información a traves de newsletter y otros, Legitimación: Por consentimiento, Destinatarios: No se cederan los datos, salvo para elaborar contabilidad, Derechos de las personas interesadas: Acceder, rectificar y suprimir los datos, solicitar la portabilidad de los mismos, oponerse altratamiento y solicitar la limitación de éste, Procedencia de los datos: El Propio interesado, Información Adicional: Puede consultarse la información adicional y detallada sobre protección de datos Aquí.
WhatsApp
Facebook Instagram Youtube