98.000€
62m2
1000 Mts.
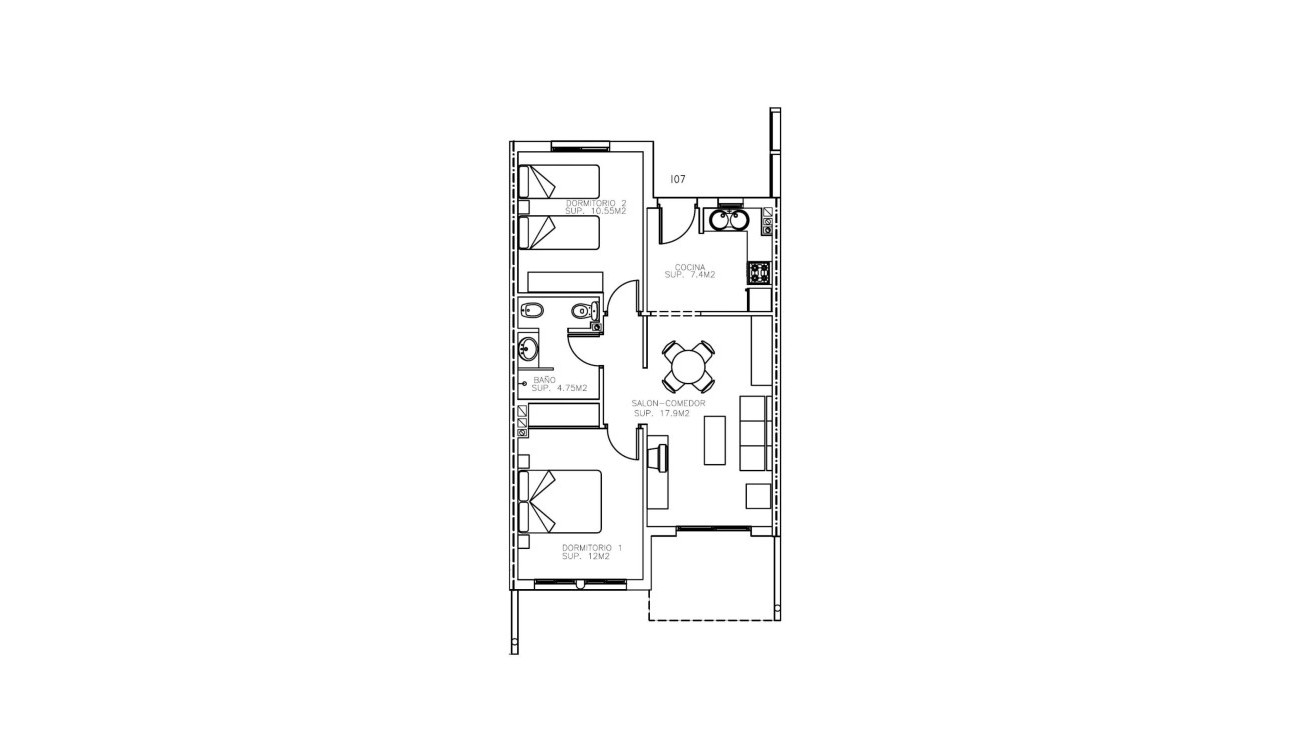
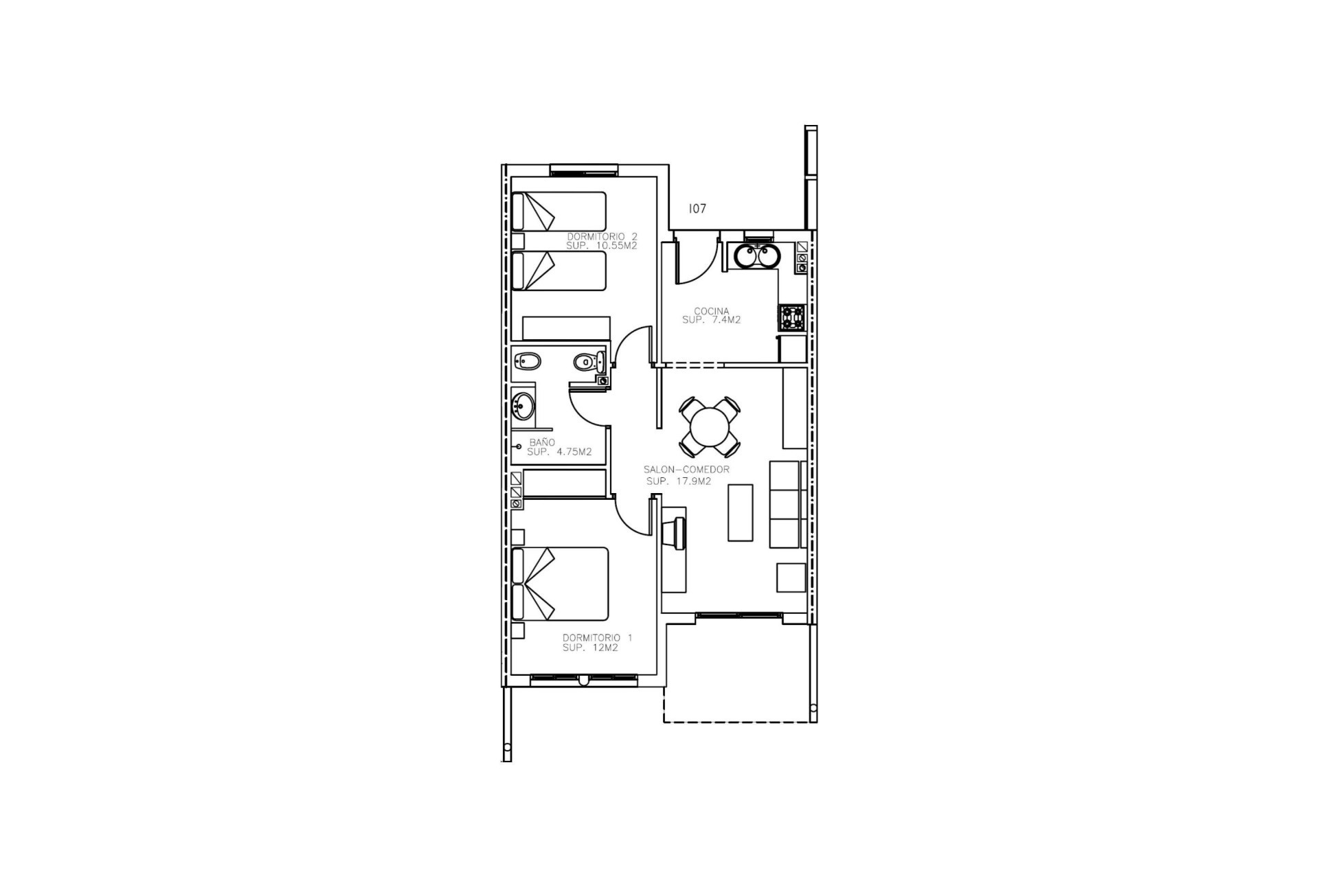
Toeristische appartementen als investering vlak bij het strand in Águilas-Murcia Exclusief wooncomplex in Los Collados-Águilas Ontdek dit exclusieve complex met toeristische appartementen in Los Collados, een van de meest aantrekkelijke woonwijken van Águilas in de regio Murcia. Dit project, gelegen in de bekende urbanisatie Collados Zieschang, biedt een perfecte combinatie van een natuurlijke omgeving, een levensstijl aan zee en investeringspotentieel. Het complex ligt op slechts 1 km van het strand en wordt omringd door prachtige landschappen zoals de Sierra de Almenara, Cabo Cope en Calabardina, waardoor het een ideale bestemming is voor natuurliefhebbers, wandelaars en mensen die op zoek zijn naar rust aan zee. Slimme investering met verhuurbeheer en btw-voordelen Dit project is ontworpen voor investeerders die op zoek zijn naar een veilige en zorgeloze kans. Het complex beschikt over een toeristenvergunning en wordt beheerd door een professionele exploitant. Eigenaren kunnen tot 2 maanden per jaar persoonlijk gebruik maken van de woning, terwijl het beheerbedrijf de verhuur voor de resterende periode regelt, wat een consistent inkomen oplevert. Bovendien maakt dit type investering btw-teruggave mogelijk, wat aanzienlijke financiële voordelen biedt en het totale rendement verhoogt. Volledig gemeubileerde appartementen, klaar voor gebruik Het complex is gebouwd in 2008 en bestaat uit 87 appartementen, verdeeld over 4 gebouwen met een begane grond en twee verdiepingen, allemaal met lift en directe toegang tot de ondergrondse parkeergarage. Elk appartement beschikt over 2 slaapkamers, 1 badkamer, een volledig uitgeruste keuken en een lichte woon-eetkamer met toegang tot een privéterras. Alle woningen zijn voorzien van airconditioning (warm en koud) en elke unit beschikt over een eigen ondergrondse parkeerplaats. De appartementen worden volledig gemeubileerd opgeleverd en zijn uitgerust met apparatuur zoals een koelkast, wasmachine, oven, magnetron en keramische kookplaat, waardoor ze direct klaar zijn voor gebruik of verhuur. Diverse indelingen en buitenruimtes Het project biedt verschillende appartementstypes om aan diverse voorkeuren te voldoen. De appartementen op de begane grond beschikken over terrassen of privétuinen variërend van 6 tot 86 m². De appartementen op de eerste verdieping hebben terrassen van ongeveer 6 m², terwijl de penthouses op de bovenste verdieping een terras plus een privé-dakterras van ongeveer 37 m² bieden, ideaal om van het mediterrane klimaat te genieten. Gemeenschappelijke ruimtes en levensstijl Bewoners en gasten kunnen genieten van een groot buitenzwembad omgeven door aangelegde tuinen, evenals een bar die tijdens de zomermaanden geopend is. Het complex is ontworpen om het hele jaar door ontspanning, comfort en een vakantiesfeer te bieden. Toplocatie en afstanden Centrum van Águilas 3 km Strand van Calabardina 3 km Natuurgebied Cabo Cope 10 km Lorca 35 km Internationale luchthaven Murcia 75 km Uw kans aan de Costa Cálida Dit is een ideale kans om persoonlijk plezier te combineren met een winstgevende investering in een prachtige kustomgeving. Neem vandaag nog contact met ons op voor meer informatie of om een bezichtiging te regelen en uw appartement in Águilas te bemachtigen. 604
2
1
62m2
50m2
Ja
1000 Mts.