98.000€
62m2
1000 Mts.
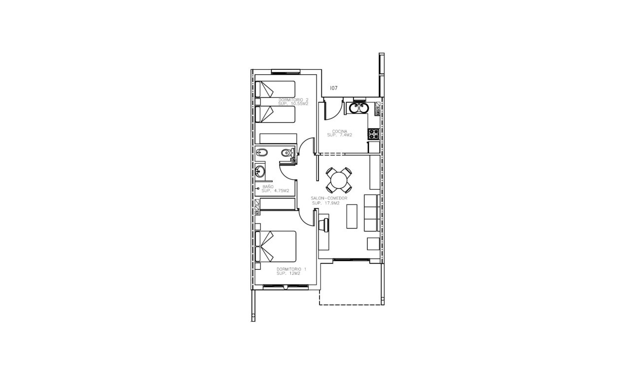
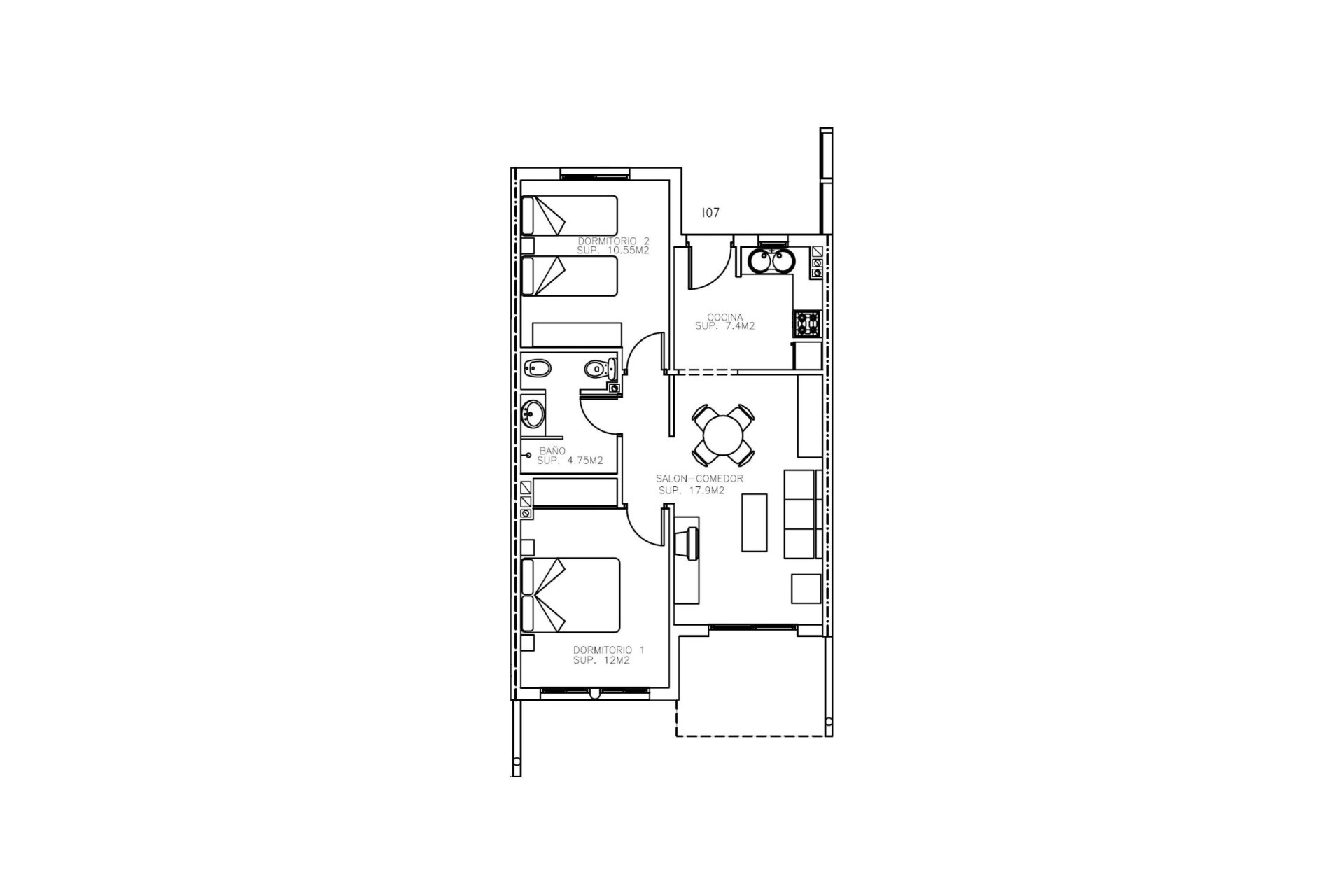
Appartements touristiques à vocation d'investissement près de la plage à Águilas (Murcie) Complexe résidentiel exclusif à Los Collados, Águilas Découvrez ce complexe exclusif d'appartements touristiques situé à Los Collados, l'un des quartiers résidentiels les plus attrayants d'Águilas, dans la région de Murcie. Niché au sein du célèbre lotissement Collados Zieschang, ce complexe offre une combinaison parfaite entre cadre naturel, art de vivre en bord de mer et potentiel d'investissement. Le complexe est situé à seulement 1 km de la plage et entouré de paysages époustouflants tels que la Sierra de Almenara, Cabo Cope et Calabardina, ce qui en fait une destination idéale pour les amoureux de la nature, les passionnés de randonnée et ceux qui recherchent la tranquillité au bord de la mer. Un investissement intelligent avec gestion locative et avantages fiscaux Ce projet s'adresse aux investisseurs à la recherche d'une opportunité sûre et sans tracas. Le complexe dispose d'une licence touristique et est géré par un opérateur professionnel. Les propriétaires peuvent en profiter à titre personnel jusqu'à 2 mois par an, tandis que la société de gestion se charge des locations pour le reste de l'année, générant ainsi un revenu régulier. De plus, ce type d'investissement permet le remboursement de la TVA, offrant des avantages financiers significatifs et améliorant le rendement global. Appartements entièrement meublés et prêts à emménager Construit en 2008, le complexe se compose de 87 appartements répartis dans 4 bâtiments comprenant un rez-de-chaussée et deux étages, tous équipés d'un ascenseur et d'un accès direct au parking souterrain. Chaque appartement comprend 2 chambres, 1 salle de bains, une cuisine entièrement équipée et un salon-salle à manger lumineux donnant sur une terrasse privée. Tous les logements sont équipés de la climatisation réversible, et chaque unité dispose d’une place de parking souterraine attitrée. Les appartements sont livrés entièrement meublés et équipés d’appareils électroménagers, notamment d’un réfrigérateur, d’un lave-linge, d’un four, d’un micro-ondes et d’une plaque vitrocéramique, ce qui les rend prêts à être utilisés ou loués immédiatement. Variété d'agencements et d'espaces extérieurs Le complexe propose différents types d'appartements pour répondre à toutes les préférences. Les logements du rez-de-chaussée comprennent des terrasses ou des jardins privés d'une superficie allant de 6 à 86 m². Les appartements du premier étage disposent de terrasses d'environ 6 m², tandis que les penthouses du dernier étage offrent une terrasse ainsi qu'un solarium privé sur le toit d'environ 37 m², idéal pour profiter du climat méditerranéen. Espaces communs et art de vivre Les résidents et leurs invités peuvent profiter d'une grande piscine extérieure entourée de jardins paysagers, ainsi que d'un espace bar ouvert pendant les mois d'été. Le complexe est conçu pour offrir détente, confort et une ambiance de vacances tout au long de l'année. Emplacement de choix et distances Centre-ville d'Águilas : 3 km Plage de Calabardina : 3 km Zone naturelle de Cabo Cope : 10 km Lorca : 35 km Aéroport international de Murcie : 75 km Votre opportunité sur la Costa Cálida C'est l'occasion idéale de combiner plaisir personnel et investissement rentable dans un magnifique cadre côtier. Contactez-nous dès aujourd'hui pour recevoir plus d'informations ou organiser une visite et réserver votre appartement à Águilas. 604
2
1
62m2
50m2
Oui
1000 Mts.