420.000€
173m2
10 Mts.
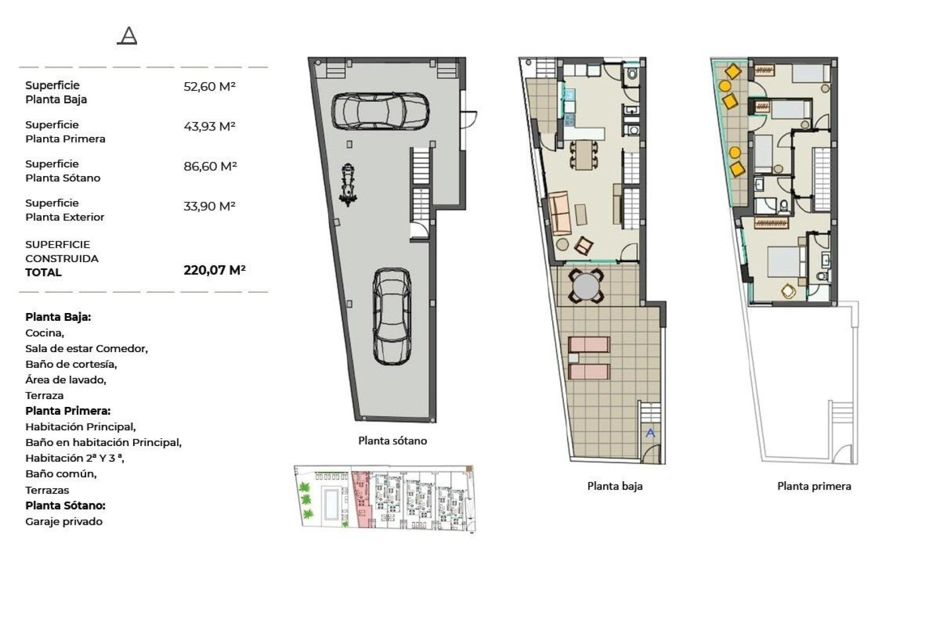
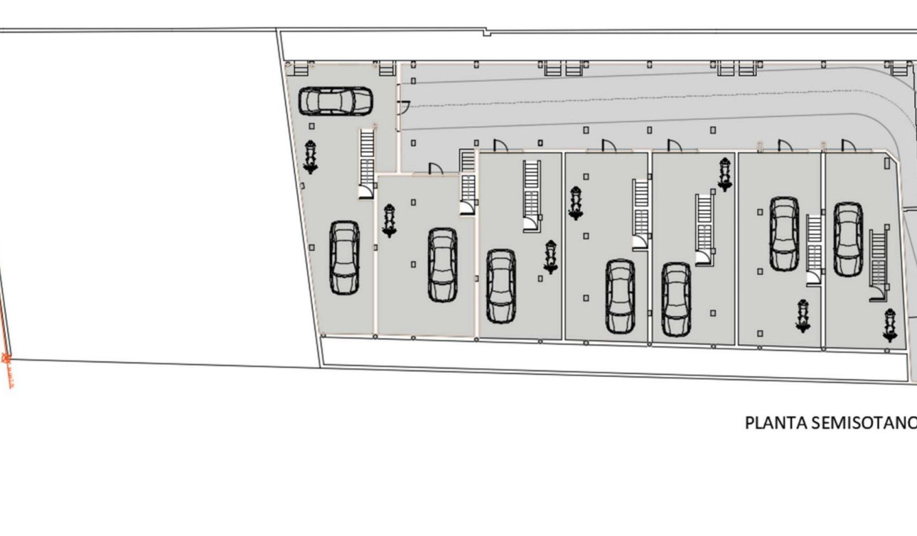
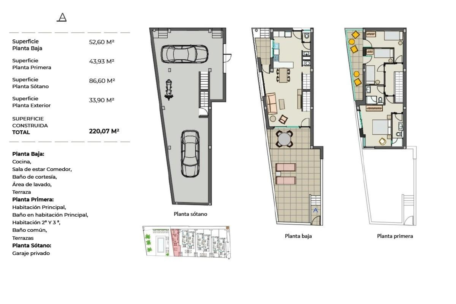
Villas jumelées neuves en bord de mer à Moncofa avec vue sur la mer Emplacement de choix sur la côte de Castellón Découvrez un programme immobilier exclusif de villas jumelées contemporaines situées en première ligne de plage à Moncofa, entre les zones côtières de Chilches et de Moncofa. Ce cadre privilégié sur la Costa del Azahar offre un accès direct à des plages de sable paisibles et à un mode de vie méditerranéen décontracté. Le quartier est idéal tant pour une résidence principale que pour des vacances, avec des restaurants locaux, des bars de plage, des supermarchés et tous les services essentiels à proximité. Moncofa est bien desservie par le réseau routier, ce qui permet d'accéder facilement aux villes voisines telles que Castellón et Valence. Design moderne et agencement fonctionnel Ce programme immobilier de prestige se compose de seulement 7 élégantes demeures, conçues avec des lignes architecturales épurées et axées sur le confort et la vie quotidienne. Chaque propriété dispose de 3 chambres, de 2 salles de bains dont une attenante, et de toilettes supplémentaires pour les invités. Les maisons sont réparties sur trois niveaux, optimisant ainsi l'espace et la lumière naturelle. Le rez-de-chaussée offre un espace salon et salle à manger ouvert avec une cuisine entièrement équipée, qui s'ouvre directement sur une terrasse privée offrant une magnifique vue sur la mer. Le premier étage abrite les chambres, dont une spacieuse suite parentale, tandis que certaines unités disposent également d'une terrasse à ce niveau. Le sous-sol comprend un garage privé pouvant accueillir 1 ou 2 véhicules ainsi qu'un espace de rangement supplémentaire. Finitions de qualité et prêt à emménager Toutes les villas sont livrées entièrement meublées. Les cuisines sont équipées d'appareils électroménagers et les salles de bains sont entièrement aménagées avec mobilier, miroirs et parois de douche. Les propriétés disposent également d'une climatisation entièrement installée et d'un système aérothermique efficace pour l'eau chaude, garantissant confort et efficacité énergétique tout au long de l'année. Communauté et style de vie exclusifs Le complexe résidentiel comprend une piscine commune et des jardins paysagers, le tout situé en première ligne de plage. Cela crée une atmosphère paisible et sécurisée, parfaite pour profiter du climat méditerranéen et de la vie en plein air. Distances vers les principaux points d'intérêt Plage de Moncofa : 0 km Plage de Chilches : 2 km Centre-ville de Castellón : 30 km Ville de Valence : 50 km Aéroport de Valence : 55 km Aéroport de Castellón : 45 km Parcours de golf les plus proches : environ 20 km Votre maison méditerranéenne vous attend Que vous recherchiez une résidence permanente, une maison de vacances ou un investissement judicieux, ces villas jumelées en bord de mer à Moncofa offrent une opportunité unique de profiter de la mer, du confort et d’un design moderne dans l’une des zones côtières les plus authentiques d’Espagne. Contactez-nous dès aujourd’hui pour plus d’informations ou pour organiser une visite. 604
3
2
173m2
116m2
Oui
10 Mts.