420.000€
173m2
10 Mts.
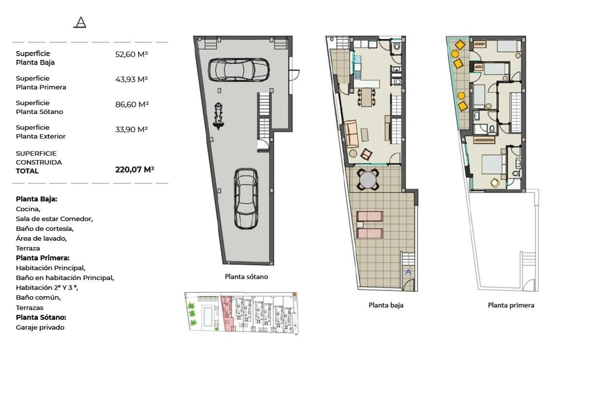
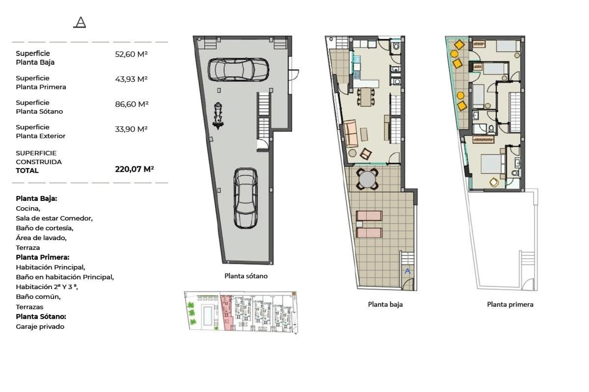
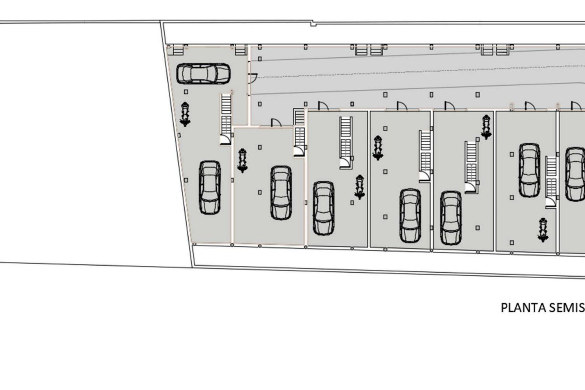
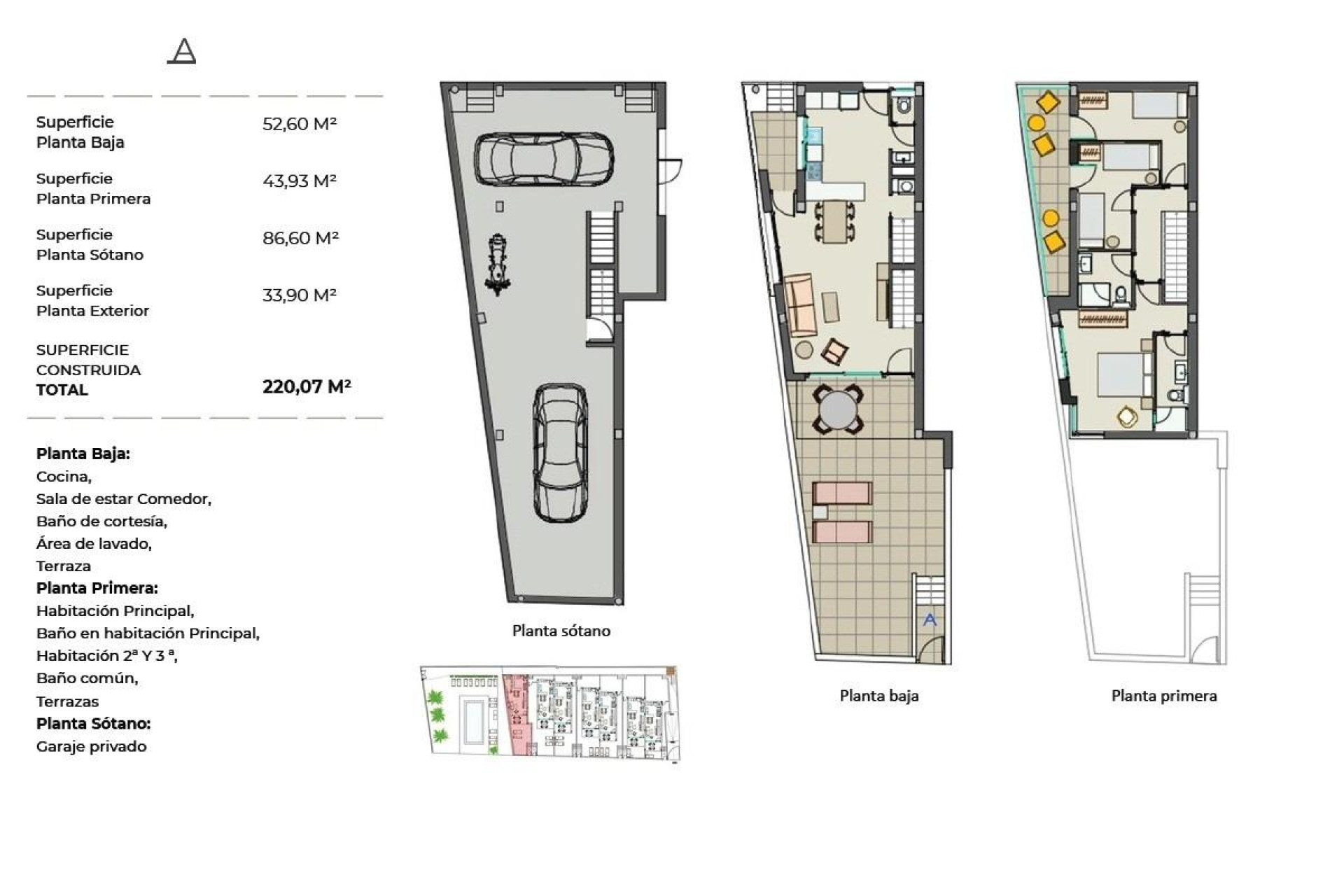
New Build Beachfront Semi Detached Villas in Moncofa with Sea Views Prime Location on the Coast of Castellón Discover an exclusive development of contemporary semi detached villas located in first line of the beach in Moncofa, between the coastal areas of Chilches and Moncofa. This privileged setting on the Costa del Azahar offers direct access to peaceful sandy beaches and a relaxed Mediterranean lifestyle. The area is ideal for both permanent living and holiday use, with local restaurants, beach bars, supermarkets and essential services within a short distance. Moncofa is well connected by road, allowing easy access to nearby towns and cities such as Castellón and Valencia. Modern Design and Functional Layout This boutique development consists of just 7 elegant homes, designed with clean architectural lines and a focus on comfort and everyday living. Each property features 3 bedrooms, 2 bathrooms including one ensuite, and an additional guest toilet. The homes are distributed over three levels, maximizing space and natural light. The ground floor offers an open plan living and dining area with a fully equipped kitchen, seamlessly connected to a private terrace with beautiful sea views. The first floor hosts the bedrooms, including a spacious master suite, while some units also include a terrace on this level. The basement level provides a private garage for 1 or 2 vehicles and additional storage space. Quality Finishes and Ready to Move In All villas are delivered fully furnished. The kitchens include appliances, and bathrooms come complete with furniture, mirrors and shower screens. The properties also feature fully installed air conditioning and an efficient aerothermal system for hot water, ensuring comfort and energy efficiency throughout the year. Exclusive Community and Lifestyle The residential complex includes a communal swimming pool and landscaped gardens, all set in a frontline beach environment. This creates a peaceful and secure atmosphere, perfect for enjoying the Mediterranean climate and outdoor living. Distances to Key Points of Interest Moncofa Beach: 0 km Chilches Beach: 2 km Castellón city center: 30 km Valencia city: 50 km Valencia Airport: 55 km Castellón Airport: 45 km Nearest golf courses: approximately 20 km Your Mediterranean Home Awaits Whether you are looking for a permanent residence, a holiday home or a smart investment, these beachfront semi detached villas in Moncofa offer a unique opportunity to enjoy the sea, comfort and modern design in one of the most authentic coastal areas of Spain. Contact us today for more information or to arrange a visit. 604
3
2
173m2
116m2
Yes
10 Mts.